K prodeji, dům, 306 m2

 
 
 
exkluzivně
 
Lokalita:
 
 
Cena:
6 921 000 Kč / za nemovitost
 
 
uvedená cena je: bez provize, k jednání Nabídněte prodejci Vaši cenu 
 
 

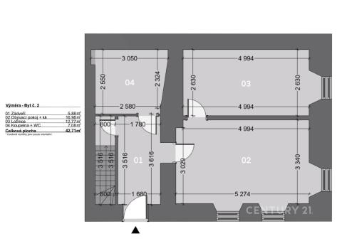
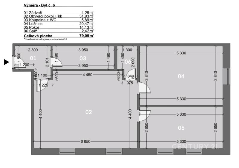
Nabízíme k prodeji rozestavěný třípodlažní objekt v lukrativní části Vamberka, jen pár kroků od místního náměstí. Projekt, který se nachází v pokročilé fázi rozestavěnosti zahrnuje pět bytových jednotek k prodeji, přičemž šestá jednotka předmětem prodej není. Zásadní výhodou pro investora je platné stavební povolení pro vybudování šesti samostatných jednotek a fakt, že všechny jednotky jsou již zapsané v katastru nemovitostí, což umožňuje jejich případný prodej i jednotlivě. Projekt představuje ideální příležitost pro investora, který chce dokončit jednotky a následně je prodat nebo pronajímat. Objekt se nachází v historickém centru města a zároveň je velmi dobře napojen na průmyslovou zónu SolniceKvasiny. Blízkost závodu Škoda Auto a jeho subdodavatelů vytváří v regionu poptávku po moderních bytech v rozumné vzdálenosti od práce. Vamberk dnes představuje strategický bod na mapě východních Čech, který spojuje průmyslový rozvoj s klidem podhůří Orlických hor. Za pouhých 20 minut jízdy autem se ocitnete v předních lyžařských a rekreačních střediscích, jako jsou Říčky nebo Deštné v Orlických horách. Tato kombinace městského komfortu a blízkosti horských hřebenů činí z projektu mimořádně atraktivní místo pro moderní život. Vamberk slouží jako přirozený dopravní uzel spojující Rychnov nad Kněžnou, Ústí nad Orlicí a krajské město Hradec Králové. Autobusová zastávka se nachází 200 m od domu a železniční stanice cca 700 m od něj. Bytové jednotky mají různé dispozice a velikosti: v přízemí se nachází byt č. 1 o podlahové ploše 51 m² (dispozice 1+1) a byt č. 2 o velikosti 43 m² 2+kk, v druhém podlaží je byt č. 3 (47 m²) 2+kk a byt č. 4 (56 m²) 2+kk, který není předmětem prodeje, a v třetím podlaží jsou byt č. 5 (40 m²) 2+kk a byt č. 6 (82 m²) – 3+kk. K jednotkám náleží sklepní koje o velikosti 2,6–3,2 m² a dále společné prostory domu. Součástí projektu je zřízení krytého parkování pro obyvatele jednotlivých bytů. Bydlení v této nemovitosti nabídne budoucím vlastníkům nebo nájemníkům největší luxus dnešní doby – vše potřebné doslova na dosah ruky. Dům se nachází v historickém centru města, což zaručuje maximální pohodlí bez nutnosti každodenního startování auta. Rodiny s dětmi ocení, že mateřská, základní škola i dům dětí a mládeže (s řadou zájmových aktivit) jsou vzdáleny jen pár minut bezpečné chůze. Každodenní praktické potřeby lze vyřešit přímo na náměstí nebo v jeho okolí, kde najdete budovu radnice, pekárnu, kavárnu, restauraci, lékárnu, bankomat, řadu lokálních obchůdků i supermarket Penny Market. Vamberk však nenabízí jen praktičnost, ale i bohaté společenské vyžití. Místní městský klub (koncerty, divadlo, výstavy, tanec), muzeum, restaurace a kavárny oživují tep města a vytvářejí příjemnou atmosféru pro volné večery. Pro aktivnější jedince je k dispozici fitness studio, moderní sportovní areál, sportovní hala, skatepark a v letních měsících oblíbené koupaliště, které doplňuje pestrou mozaiku služeb, jež z této adresy dělají skutečně prestižní místo pro život.

 
zobrazit více
 
 
 


Doplňující informace:

ID inzerátu ESO: 4393677
Inzerát vydán: 01.04.2026
Inzerát aktualizován: 18.04.2026
ID zakázky v RK: 7401410
Budova je z: Cihla
Stav: Ve výstavbě (nezkolaudováno)
Vlastnictví: Osobní
Umístění: Ve výstavbě (nezkolaudováno)
Poloha objektu: Řadový
Užitná plocha: 306 m2
Plocha pozemku: 336 m2
Voda: Vodovod
Parkování: Kryté stání
Podlahová plocha: 306 m2
Zastavěná plocha: 168 m2
Energetická náročnost budovy:
G - Mimořádně nehospodárná
 
 

 

Bleskový dotaz makléři

K prodeji, dům, 306 m2

Text dotazu *
Váš telefon *
Váš e-mail
Zobrazit kontaktní informace
Odeslat
 
 
 
 

Ve schránce je 0 inzerátů.

zobrazit celou schránku
 
 

Nalezli jsme dalších 1576 nemovitostí v podobné ceně.

 
 
reklama