K prodeji, Rodinný dům, Hrotovice, Manž. Orlových

 
 
 
Lokalita:
Hrotovice, Manž. Orlových
 
 
Cena:
12 000 000 Kč / za nemovitost
 
včetně DPH, včetně poplatků, včetně provize, včetně právního servisu
 
uvedená cena je: včetně poplatků, včetně provize, včetně právního servisu, s DPH Nabídněte prodejci Vaši cenu 
 
 

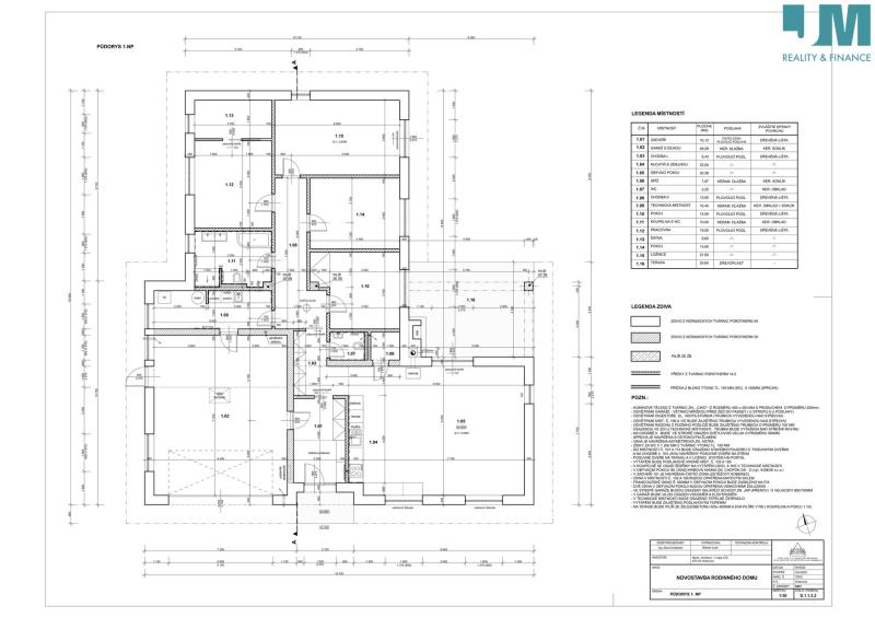
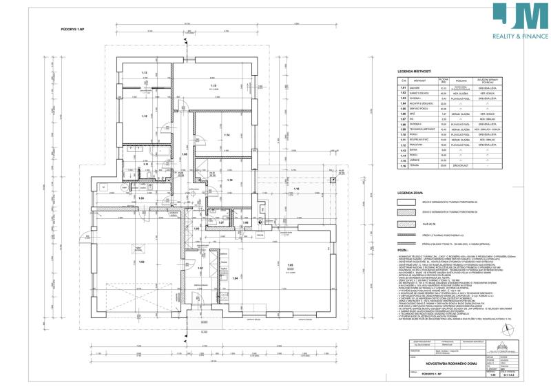
Rád Vám zprostředkuji prodej krásné prostorné novostavby v klidné části Hrotovic (10 minut od Dukovan). V domě naleznete ložnici s šatnou, pracovnu, dva pokoje, prostorný obývací pokoj propojený s kuchyní a vstupem na zastřešenou terasu. Z kuchyně je vstup do komory. V domě je také koupelna s prostorem pro vanu, sprchový kout a toaletu, dále v domě naleznete samostatnou toaletu. Vedle vstupu do domu se nachází garáž pro dvě auta o rozloze 49 m². Za garáží je technická místnost. Zdi domu tvoří Heluz, střecha Tondach. Okna, dveře a posuvné dveře jsou z plastu. V domě bude kompletní rozvod elektriky (měď), příprava na předokenní žaluzie a také příprava pro fotovoltaiku a vallbox. Součástí je podlahové topení v celém domě, tepelné čerpadlo De Ditrich Alezio v200 r32. V ceně není: vybavení domu (zařizovací předměty, vnitřní dveře, koupelna, toalety, kuchyň), finální podlahy (např vinyl, dlažba), oplocení pozemku a dokončovací práce na pozemku. Jedná se o velice krásný a praktický dům s pozemkem 899 m². Pro více informací mě neváhejte kontaktovat

 
zobrazit více
 
 
 


Doplňující informace:

ID inzerátu ESO: 4366139
Inzerát vydán: 23.10.2025
Inzerát aktualizován: 20.01.2026
Budova je z: Cihla
Stav: Velmi dobrý
Umístění: Velmi dobrý
Plocha pozemku: 899 m2
Terasa: 26m2
Užitná plocha: 179 m2
Energetická náročnost budovy:
G - Mimořádně nehospodárná
 
 

 

Bleskový dotaz makléři

K prodeji, Rodinný dům, Hrotovice, Manž. Orlových

Text dotazu *
Váš telefon *
Váš e-mail
Zobrazit kontaktní informace
Odeslat
 
 
 
 

Ve schránce je 0 inzerátů.

zobrazit celou schránku
 
 

Nalezli jsme dalších 10 nemovitostí v podobné ceně.

 
 
reklama