K prodeji, Rodinný dům, Králův Dvůr, Na Vinohradech

 
 
nový
 
Lokalita:
Králův Dvůr, Na Vinohradech
 
 
Cena:
20 225 000 Kč / za nemovitost
 
včetně provize, poplatků a právního servisu
 
uvedená cena je: včetně poplatků, včetně provize, včetně právního servisu, k jednání, s DPH Nabídněte prodejci Vaši cenu 
 
 

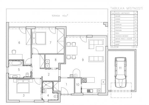
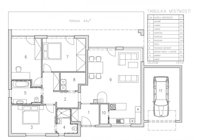
PRODEJ MODERNÍHO A ELEGANTNÍHO BUNGALOVU 4+kk S PROSTORNOU TERASOU, BAZÉNEM A 2 GARÁŽEMI - KRÁLŮV DVŮR, KŘIŽATKY Toužíte po bydlení, které spojuje eleganci, soukromí a jedinečný kontakt s přírodou? Představuji Vám výjimečný, moderní bungalov z roku 2019, situovaný v klidné, slepé ulici nové rezidenční zástavby - Králův Dvůr, Křižatky. ul. Na Vinohradech. Tato nemovitost nabízí to, co je dnes skutečně vzácné - otevřený prostor, dostatek světla, soukromí a ničím nerušené výhledy do krajiny. DOMINANTOU DOMU je vzdušný obývací prostor s designovou kuchyní, který plynule navazuje na velkorysou terasu (cca 40 m2) orientovanou na jihovýchod. Každý den zde můžete začínat s výhledem do zeleně a v naprostém klidu. EXTERIÉR je navržen pro maximální komfort i relaxaci - najdete zde bazén, kryté venkovní posezení, plně vybavenou venkovní kuchyni i zázemí pro společenské chvíle s rodinou a přáteli. Díky svažitému pozemku máte zajištěn trvalý výhled do krajiny směrem na Koněpruské jeskyně, bez rizika další výstavby. DISPOZICE DOMU 4+kk je promyšlená do posledního detailu: (VIZ. PŮDORYS) - podlahová plocha cca 120 m2, užitná plocha s terasou cca 140 m2 + 2 garáže a prostor pod terasou - vstupní chodba/zádveří - prostorný obývací pokoj s designovou kuchyňskou linkou a komorou - hlavní ložnice s vlastní koupelnou - další dva pokoje s přímým vstupem na terasu - druhá koupelna s WC - technická místnost Cena domu zahrnuje i většinu vybavení, nábytek dle dohody. DŮRAZ NA KVALITU A TECHNOLOGIE: - moderní stavební systém Pasifbrick - kvalitně zateplená rovná střecha - dům je napojen na elektřinu, vodovod a kanalizaci - elektrický kotel s podlahovým vytápěním + krbová kamna - plastová okna s trojskly - kvalitní interiérové dveře, většina pouzdrových - kvalitní podlahy - zabezpečovací a kamerový systém - energetická třída C (měsíční náklady cca 10.500 Kč) Komfort parkování zajišťují dvě garáže a další 2 parkovací místa na pozemku. Lokalita je ideální pro ty, kteří hledají klidné rodinné bydlení s výbornou dostupností - Beroun 9 km, Praha 30 km. V docházkové vzdálenosti je dětské a sportovní hřiště i MHD. Financování hypotečním úvěrem je samozřejmostí,rádi Vám zajistíme individuální podmínky. Tento dům není jen nemovitost. Je to životní styl. Zvu Vás na osobní prohlídku. Pozn. rozměry jsou orientační

 
zobrazit více
 
 
 


Doplňující informace:

ID inzerátu ESO: 4392329
Inzerát vydán: 23.03.2026
Inzerát aktualizován: 27.03.2026
ID zakázky v RK: 0
Budova je z: Cihla
Stav: Velmi dobrý
Umístění: Velmi dobrý
Plocha pozemku: 663 m2
Terasa: 43m2
Užitná plocha: 140 m2
Podlahová plocha: 200 m2
Zastavěná plocha: 216 m2
Energetická náročnost budovy:
C - Úsporná
 
 

 

Bleskový dotaz makléři

K prodeji, Rodinný dům, Králův Dvůr, Na Vinohradech

Text dotazu *
Váš telefon *
Váš e-mail
Zobrazit kontaktní informace
Odeslat
 
 
 
 

Ve schránce je 0 inzerátů.

zobrazit celou schránku
 
 

Nalezli jsme dalších 18 nemovitostí v podobné ceně.

 
 
reklama