K prodeji, Rodinný dům, Nečtiny

 
 
 
exkluzivně
 
Lokalita:
Nečtiny
 
 
Cena:
1 870 000 Kč / za nemovitost
 
 
Nabídněte prodejci Vaši cenu 
 
 

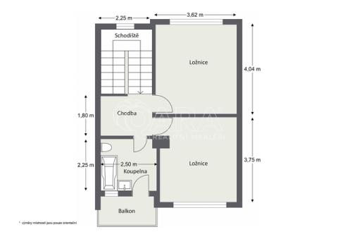
Hledáte klidné a cenově dostupné bydlení? Pak je tohle příležitost pro vás. Po dokončení rekonstrukce získáte výhody bezstarostného bydlení v bytě a zároveň soukromí a nezávislost vlastního domu. Ve vesnici Březín u Nečtin je na prodej řadový rodinný dům. Dům je dispozičně řešený jako 3+1. Na každém patře jsou 2 obytné místnosti, dole je WC s umyvadlem, v patře koupelna s vanou a WC. Součástí domu je balkon a nadstandardně velké a praktické sklepní prostory. Dům má přední i zadní vchod a má vlastní biologickou čističku odpadních vod zprovozněnou před 3 lety. Do domu je zavedený obecní vodovod. Dům je určený k rekonstrukci. Potřebuje celkovou modernizaci včetně všech sítí a rozvodů. Výhodou je, že víte, do čeho jdete. Dům je ve stavu před rekonstrukcí a v inzerci žádná závada není zakrývána. Všechno, co vidíte v inzerci, odpovídá skutečnosti. Nečekají vás další kostlivci ve skříni. Přes dvůr najdete zahradu (cca 250 m2), která byla původně pronajata od obecního úřadu. Nájemní smlouvu můžete opět obnovit, nebo si zahradu odkoupit za cenu 100 Kč za m2. Dům najdete v klidné vesnici Březín, která spadá pod obec Nečtiny (2,5 km). Nečtiny nabízí dobrou občanskou vybavenost - obecní úřad, základní a mateřskou školu, zdravotní středisko, prodejnu potravin a restauraci. Nejbližší města jsou Manětín (9 km) a Plasy (26 km), krajské město Plzeň je vzdáleno 40 km. Okolí je charakteristické krásnou přírodou, která přitahuje mnoho výletníků a turistů. Pokud milujete venkov a hledáte klidné a cenově dostupné bydlení, je tohle příležitost pro vás. Zavolejte mi a zajedeme se spolu do Březína podívat.

 
zobrazit více
 
 
 


Doplňující informace:

ID inzerátu ESO: 4373790
Inzerát vydán: 05.12.2025
Inzerát aktualizován: 03.03.2026
ID zakázky v RK: 18155
Budova je z: Smíšená
Stav: Před rekonstrukcí
Umístění: Před rekonstrukcí
Plocha pozemku: 63 m2
Užitná plocha: 115 m2
Plocha sklepa: 39 m2
Energetická náročnost budovy:
G - Mimořádně nehospodárná
 
 

 

Bleskový dotaz makléři

K prodeji, Rodinný dům, Nečtiny

Text dotazu *
Váš telefon *
Váš e-mail
Zobrazit kontaktní informace
Odeslat
 
 
 
 

Ve schránce je 0 inzerátů.

zobrazit celou schránku
 
 
reklama