K prodeji, Rodinný dům, Neratovice, Kpt. Jaroše

 
 
 
Lokalita:
Neratovice, Kpt. Jaroše
 
 
Cena:
8 200 000 Kč / za nemovitost
 
 
uvedená cena je: včetně provize Nabídněte prodejci Vaši cenu 
 
 

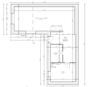
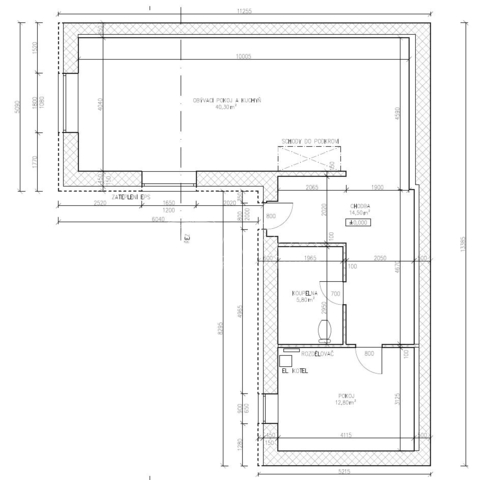
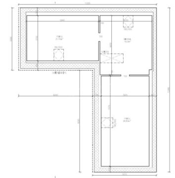
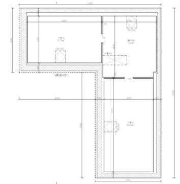
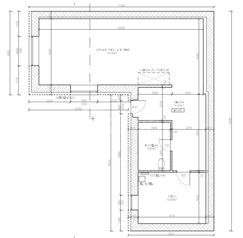
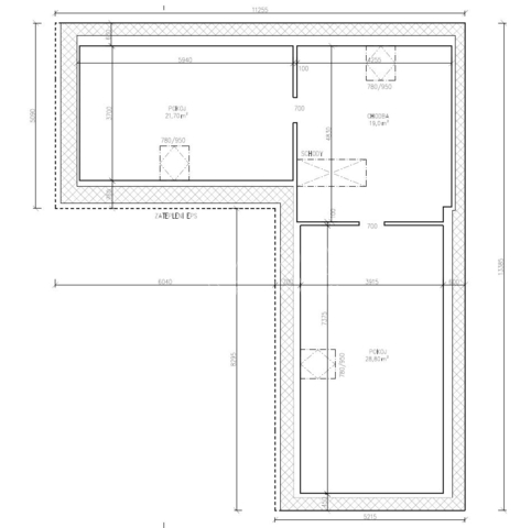
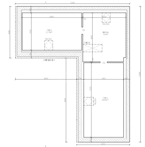
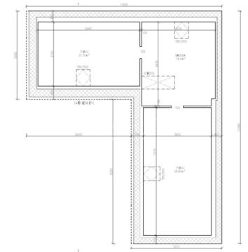
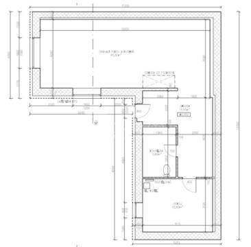
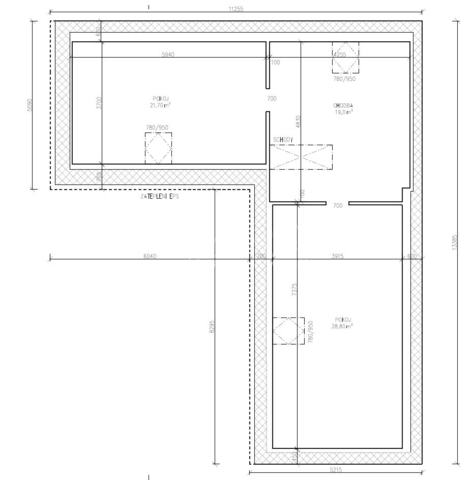
Nabízím k prodeji rodinný dům 4+kk s menší zahrádkou v ulici Kpt. Jaroše Neratovice. Dům prošel vkusnou renovací a je připraven k nastěhování. V přízemí vstupní chodba, prostorný obývací pokoj s kuchyňským koutem, koupelna s WC a samostatný pokoj, celková velikost 73,4 m2. V podkroví chodba a dvě samostatné ložnice o celkové velikosti 69,5 m2. Stavba byla odkopána a osazena izolace včetně nopové folie. Zatepleno Polystyrenem 10-14 cm, vnitřní zeď k sousedovi s předstěnou ze sádrokartonu, zateplena vatou. V celém přízemí podlahové topení s napojením na nový elektrokotel + otopný žebřík v koupelně. Kompletní nové rozvody elektřiny, odpadu i vody. Napojeno na elektřinu, obecní vodovod i kanalizaci, před domem plyn. Podlaha 2x izolovaná + Polystyren 4cm + systémová deska a dlažba. Strop trámy 20 cm, vata 10 cm + sádrokarton. Z vrchu OSB deska 2,5 cm + vinylová podlaha. Střecha mezi krokvemi izolační vata a paropropustná folie. Nedaleko domu veškerá občanská vybavenost, v blízkosti vlakové nádraží směr Praha. Možnost financování hypotečním úvěrem, se kterým Vám rádi pomůžeme. Více informací na níže uvedeném kontaktu.

 
zobrazit více
 
 
 


Doplňující informace:

ID inzerátu ESO: 4376100
Inzerát vydán: 16.12.2025
Inzerát aktualizován: 14.05.2026
ID zakázky v RK: 0
Budova je z: Smíšená
Stav: Po rekonstrukci
Umístění: Po rekonstrukci
Plocha pozemku: 186 m2
Užitná plocha: 143 m2
Podlahová plocha: 143 m2
Zastavěná plocha: 97 m2
Energetická náročnost budovy:
G - Mimořádně nehospodárná
 
 

 

Bleskový dotaz makléři

K prodeji, Rodinný dům, Neratovice, Kpt. Jaroše

Text dotazu *
Váš telefon *
Váš e-mail
Zobrazit kontaktní informace
Odeslat
 
 
 
 

Ve schránce je 0 inzerátů.

zobrazit celou schránku
 
 

Nalezli jsme dalších 36 nemovitostí v podobné ceně.

 
 
reklama