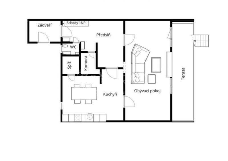
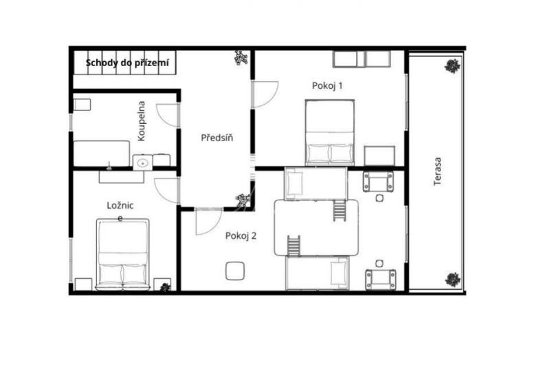
Nabízíme k prodeji řadový rodinný dům o dispozici 4+1, situovaný na adrese Gagarinova Č. p. 1213, Přelouč, okres Pardubice. Tento dvoupodlažní dům má zastavěnou plochu 89 m a užitnou plochu 161 m, což poskytuje dostatek prostoru pro rodinné bydlení. Celková plocha parcely činí 333 m, zahrada má pak výměru 218 m. Vytápění objektu je zajištěno plynovým kotlem a kotlem na tuhá paliva, přičemž topení je rozvedeno do radiátorů. Odpad je napojen na kanalizaci a přívod vody zajišťuje vodovod. Nemovitost je kompletně podsklepena, s plochou sklepa 66 m, což poskytuje dostatek úložného prostoru. Součástí domu je také garáž o výměře 23 m, ideální pro bezpečné parkování. Ve druhém patře se nachází tři prostorné pokoje, z nichž dva jsou propojené balkonem, což poskytuje příjemné výhledy a možnost relaxace na čerstvém vzduchu. Obývací pokoj je propojen s terasou o výměře 21 m, ze které se dostanete přímo na zahradu. Tato zahrada je vynikajícím místem pro rodinné oslavy či odpočinek a nabízí prostor pro pěstování rostlin nebo zahradničení. Dům je připraven na rekonstrukci, což umožňuje novému majiteli přizpůsobit si interiér podle vlastních představ a potřeb. Konečná úprava domu může být skvělou příležitostí pro realizaci vlastního stylu bydlení. Dům se nachází v klidné lokalitě, která nabízí pohodlné spojení s okolní infrastrukturou, a to včetně vlakového a autobusového spojení. V případě zájmu o prohlídku nás neváhejte kontaktovat.
Tel: 777 276 776 jan.kozak@qara.cz
Šafaříkova 201/17, 120 00 Praha 2 www.qara.cz/
Ve schránce je 0 inzerátů.
K prodeji, Rodinný dům, 121 m2 Sezemice
K prodeji, Novostavba: Rodinný dům, 84 m2 Uhersko
K prodeji, Rodinný dům, 150 m2 Pardubice, Lány na Důlku
K prodeji, Rodinný dům Holice, Bratří Čapků
K prodeji, Rodinný dům, 70 m2 Pardubice, Pod Lipami
K prodeji, Rodinný dům, 250 m2 Ostřetín
K prodeji, Rodinný dům Staré Jesenčany
K prodeji, Rodinný dům, 110 m2 Ostřešany, Ročkova