K prodeji, Rodinný dům, Račice-Pístovice, Pístovice

 
 
 
exkluzivně
 
Lokalita:
Račice-Pístovice, Pístovice
 
 
Cena:
3 990 000 Kč / za nemovitost
 
 
Nabídněte prodejci Vaši cenu 
 
 

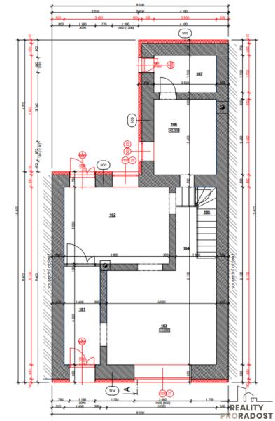
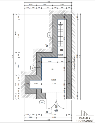
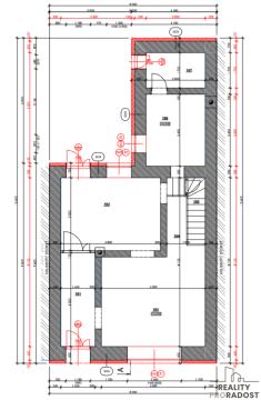
Nabízíme k prodeji prostorný a dispozičně velmi zajímavě řešený řadový rodinný dům o velikosti 4 + 1 + garáž(sklep) v obci Račice-Pístovice, okres Vyškov. V přízemí - vstupní chodba, velký obývací pokoj, kuchyně, koupelna + technická místnost s východem na zahradu/terasu. Z kuchyně východ na zahradu/terasu. V patře - ložnice, dětský pokoj, koupelna, pracovna s východem na zahradu. V suterénu - menší garáž či sklep + domácí vodárna. Dům s číslem popisným a se stavebním povolením je ve fázi hrubé stavby a je dokončeno: - elektroinstalace, rozvody vody a rozvody odpadů, příprava podlahového topení - elektro či voda, kompletní nová střecha - vazba a krytina z pálených tašek, plastová okna - trojskla, plastové vstupní dveře stejně jako vrata do garáže(sklepa) zakoupeny a uskladněny k instalaci na závěr dostavby. Dům je připojen na síť elektro, kanalizaci, vodovodní řad. Plynová přípojka je k dispozici. Výhodou je vlastní studna. Zahrada nabízí dostatek soukromí k posezení a relaxaci. Ještě nedokončené terénní úpravy nabízí několik možností přizpůsobit zahradu vlastním představám a vytvořit útulné místo korunované výhledem na dominantu obce - zámek Račice (viz foto). Předpokládaná kalkulace na dokončení stavby cca dva miliony Kč. Průkaz energetické náročnosti budovy připraven - hodnota C - úsporný. Na požádání zašleme kompletní projektovou dokumentaci. Poradíme s financováním, nabídneme chytrou a spočítáme výhodnou hypotéku. Pokud máte zájem o prohlídku, neváhejte nás kontaktovat.

 
zobrazit více
 
 
 


Doplňující informace:

ID inzerátu ESO: 4273938
Inzerát vydán: 31.08.2024
Inzerát aktualizován: 19.11.2025
ID zakázky v RK: 23692
Budova je z: Cihla
Plocha pozemku: 309 m2
Užitná plocha: 197 m2
Plocha zahrady: 117 m2
Zastavěná plocha: 192 m2
Energetická náročnost budovy:
C - Úsporná
 
 

 

Bleskový dotaz makléři

K prodeji, Rodinný dům, Račice-Pístovice, Pístovice

Text dotazu *
Váš telefon *
Váš e-mail
Zobrazit kontaktní informace
Odeslat
 
 
 
 

Ve schránce je 0 inzerátů.

zobrazit celou schránku
 
 

Nalezli jsme dalších 21 nemovitostí v podobné ceně.

 
 
reklama