K prodeji, Rodinný dům, Ratíškovice, Vítězná

 
 
 
exkluzivně
 
Lokalita:
Ratíškovice, Vítězná
 
 
Cena:
7 900 000 Kč / za nemovitost
 
 
Nabídněte prodejci Vaši cenu 
 
 

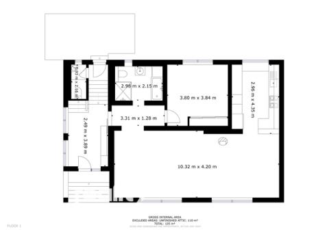
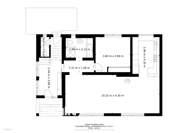
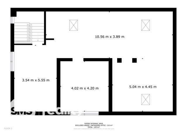
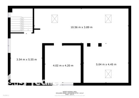
Nabízíme k prodeji patrový rodinný dům v klidné části obce Ratíškovice. V přízemí se nachází jednotka o dispozici 2+kk s obytnou plochou 105 m². Podkroví o velikosti 110 m² je stavebně připravené k dokončení a umožňuje vytvořit až tři další pokoje. Materiál potřebný k dostavbě, uvedený na fotografiích, je součástí prodeje. Dispozice: Obývací pokoj: prostorný, světlý, s krbovými kamny, které dodávají interiéru příjemnou atmosféru. Součástí je nadstandardní vestavná knihovna a pohodlný designový gauč. Kuchyň: moderní, nadčasová, s prémiovými spotřebiči Whirlpool. Vybavena s důrazem na detail, ideální pro milovníky vaření. Koupelna: elegantní a nadčasová, vybavená sprchovým koutem, vanou a podlahovým vytápěním pro maximální komfort. Ložnice: útulný prostor pro klidný spánek, s dostatkem místa pro úložné prostory. Podkroví: částečně připravené obytné podkroví o ploše dalších 110 m², které umožňuje vytvořit další pokoje podle vlastních představ. Sklep: dům je kompletně podsklepený s vlastním vjezdem – ideální pro dílnu, uskladnění nářadí, motorky nebo jiné hobby vybavení. Další informace: Vytápění a ohřev vody zajišťuje plynový kotel. Pozemek: K domu náleží pozemek o celkové výměře 671 m², z toho zahrada tvoří 537 m². Zastavěná plocha činí 134 m². Lokalita: Umístění domu nabízí dostatek soukromí a klid, přesto v docházkové vzdálenosti najdete veškerou občanskou vybavenost. Občanská vybavenost: V Ratíškovicích najdete obchody s potravinami, základní a mateřskou školu, lékárnu, sportovní areály včetně krytého bazénu a tenisových kurtů, kulturní dům a aktivní spolkový život. Dopravní dostupnost: Do Hodonína je to pouze cca 9 km, autem přibližně 10–12 minut, MHD dostupné. Náš hypoteční specialista Vám zajistí nejvýhodnější financování na trhu. V případě zájmu nás neváhejte kontaktovat o prohlídku.

 
zobrazit více
 
 
 


Doplňující informace:

ID inzerátu ESO: 4348283
Inzerát vydán: 27.07.2025
Inzerát aktualizován: 13.11.2025
ID zakázky v RK: 1373
Budova je z: Cihla
Stav: Po rekonstrukci
Umístění: Po rekonstrukci
Plocha pozemku: 671 m2
Užitná plocha: 215 m2
Zastavěná plocha: 134 m2
Energetická náročnost budovy:
G - Mimořádně nehospodárná
 
 

 

Bleskový dotaz makléři

K prodeji, Rodinný dům, Ratíškovice, Vítězná

Text dotazu *
Váš telefon *
Váš e-mail
Zobrazit kontaktní informace
Odeslat
 
 
 
 

Ve schránce je 0 inzerátů.

zobrazit celou schránku
 
 

Nalezli jsme dalších 29 nemovitostí v podobné ceně.

 
 
reklama