K prodeji, Rodinný dům, Praha 6, Stržná

 
 
nový
 
Lokalita:
Praha 6, Stržná
 
 
Cena:
16 500 000 Kč / za nemovitost
 
Včetně realitního i právního servisu
 
uvedená cena je: včetně provize, včetně právního servisu Nabídněte prodejci Vaši cenu 
 
 

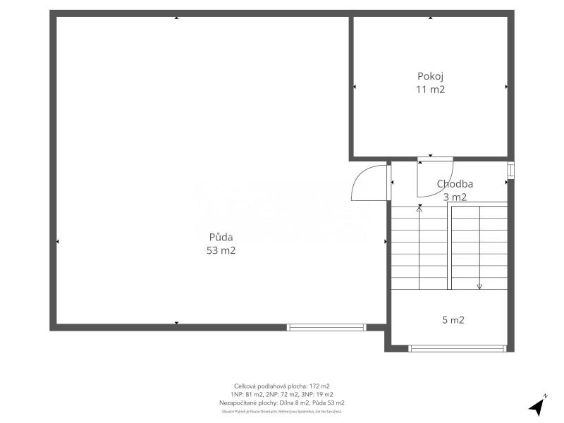
Nabízíme k prodeji rodinný dům o velkorysé užitné ploše 233 m2, v žádané a klidné lokalitě Praha 6, Suchdol. Dům se nachází ulici Stžná, v těsné blízkosti veškeré občanské vybavenosti. Dům je postaven na vlastním pozemku o výměře 401 m2, je kompletně oplocen. Je napojen na veškeré inženýrské sítě ( plyn, elektřina, obecní vodovod a veřejná kanalizace). Na pozemku dále naleznete garáž s výjezdem přímo na ulici. Nemovitost je celkově dobrém udržovaném stavu. Přesto je nutná kompletní rekonstrukce celého domu. V poslední patře se nachází prostorná půda a bylo v plánu dostavba posledního patra. K tomuto záměru existuje kompletní stavební dokumentace. V blízkosti domu a v pěším dosahu se nachází mateřská škola, základní škola, obchody s potravinami, zdravotnické zařízení, lékárna, restaurace, plavecký bazén, komunitní zahrada a sportovní zařízení. Výborné dopravní spojení do centra Prahy zajišťují různé autobusové linky s konečnou u stanice metra trasy A - Dejvická, V budoucnu se plánuje propojení Suchdola tramvajovou tratí. Nemovitost není zatížena žádným omezením vlastnického práva, je možné ji financovat hypotečním úvěrem, který který vám rádi a zdarma pomůžeme zařídit. Tato nemovitost představuje velmi dobrý investiční záměr jak pro investory, tak i pro příjemné bydlení rodiny s dětmi.. Velmi rád vás touto nemovitostí osobně provedu na prohlídce. Neváhejte mne kontaktovat.

 
zobrazit více
 
 
 


Doplňující informace:

ID inzerátu ESO: 4397235
Inzerát vydán: 16.04.2026
ID zakázky v RK: 20013
Budova je z: Cihla
Stav: Dobrý
Umístění: Dobrý
Plocha pozemku: 99 m2
Užitná plocha: 233 m2
Podlahová plocha: 233 m2
Plocha zahrady: 302 m2
Zastavěná plocha: 99 m2
Energetická náročnost budovy:
E - Nehospodárná
 
 

 

Bleskový dotaz makléři

K prodeji, Rodinný dům, Praha 6, Stržná

Text dotazu *
Váš telefon *
Váš e-mail
Zobrazit kontaktní informace
Odeslat
 
 
 
 

Ve schránce je 0 inzerátů.

zobrazit celou schránku
 
 

Nalezli jsme dalších 2 nemovitostí v podobné ceně.

 
 
reklama