K prodeji, Rodinný dům, Unhošť, Dědkův mlýn

 
 
 
Lokalita:
Unhošť, Dědkův mlýn
 
 
Cena:
6 950 000 Kč / za nemovitost
 
Akce Zvýhodněná koupě
 
uvedená cena je: včetně provize, k jednání Nabídněte prodejci Vaši cenu 
 
 

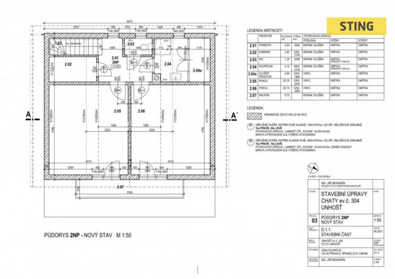
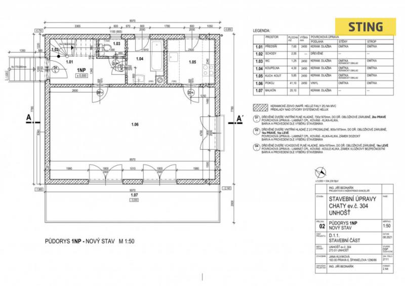
Na tuto nemovitost se vztahuje akce Realitní a investiční skupiny STING se zvýhodněnou koupí. Podrobnosti akce jsou zveřejněny v podmínkách [na webu skupiny STING]. Pro bližší informace o možné slevě volejte makléři. SLEVA: Rozestavěný dům s velkým pozemkem (1 151 m²), 20 min od Prahy v lukrativní oblasti Hledáte místo v přírodě, kde si vytvoříte domov přesně podle sebe a přitom budete za 20 minut v Praze? Nabízíme rozestavěný dům na pozemku o velikosti 1 151 m² v klidné a vyhledávané lokalitě u Dědkova Mlýna v Unhošti. Nemovitost nabízí nejen soukromí, výhledy do zeleně a velkorysý prostor, ale také možnost dokončení přesně podle vašich představ. Tato nemovitost představuje ideální kombinaci soukromí, přírody a výborné dostupnosti do Prahy, která je vzdálena pouhých 20 km. Tady nekupujete jen stavbu. Kupujete si místo, kde můžete zpomalit, nadechnout se a vytvořit si domov přesně podle svých představ. Dům s č. ev. o zastavěné ploše 72 m² je ve fázi hrubé stavby z roku 2022 a disponuje platným stavebním povolením. Nabízí promyšlenou dispozici s důrazem na světlo, výhledy a funkční uspořádání prostoru. Přízemí je navrženo jako otevřený obytný prostor s přirozeným světlem a výhledem do okolní krajiny, s místem pro kuchyňský kout a koupelnu s toaletou. V podkroví je připravena dispozice pro dvě ložnice, šatnu a druhou koupelnu. Nemovitost se nachází na dvou navazujících parcelách: Hlavní pozemek (467 m²) s rozestavěným domem a dvěma dřevníky a druhý pozemek sloužící jako zahrada a příjezdová cesta. Součástí je také garáž situovaná ve svahu s přístupem z obecní komunikace. Inženýrské sítě: studna, dotažené odpady, příprava na ČOV, přívod elektřiny Pozemky jsou v osobním vlastnictví a přístup zajištěn z obecní komunikace. Oblast Dědkova Mlýna je dlouhodobě vyhledávaná pro své přírodní okolí, lesy a možnosti aktivního odpočinku. Nabízí klidné prostředí s minimem ruchu a dostatkem soukromí. Zároveň zde dochází k postupné proměně rekreační oblasti na lokalitu vhodnou pro celoroční bydlení, což zvyšuje dlouhodobý investiční potenciál nemovitosti. Kontaktujte mě a domluvíme prohlídku. Do konce dubna 2026 nabízíme prostřednictvím našeho partnera úrokové sazby od 4,69 % p.a. Více informací Vám sdělí náš specialista na prohlídce.

 
zobrazit více
 
 
 


Doplňující informace:

ID inzerátu ESO: 4378871
Inzerát vydán: 09.01.2026
Inzerát aktualizován: 05.05.2026
ID zakázky v RK: 134156
Budova je z: Cihla
Stav: Ve výstavbě (nezkolaudováno)
Umístění: Ve výstavbě (nezkolaudováno)
Plocha pozemku: 1151 m2
Užitná plocha: 72 m2
Podlahová plocha: 72 m2
Zastavěná plocha: 72 m2
 
 

 

Bleskový dotaz makléři

K prodeji, Rodinný dům, Unhošť, Dědkův mlýn

Text dotazu *
Váš telefon *
Váš e-mail
Zobrazit kontaktní informace
Odeslat
 
 
 
 

Ve schránce je 0 inzerátů.

zobrazit celou schránku
 
 

Nalezli jsme dalších 48 nemovitostí v podobné ceně.

 
 
reklama