K prodeji, Rodinný dům, Žiželice, Končice

 
 
 
exkluzivně
 
Lokalita:
Žiželice, Končice
 
 
Cena:
4 250 000 Kč / za nemovitost
 
včetně odměny RK
 
Nabídněte prodejci Vaši cenu 
 
 

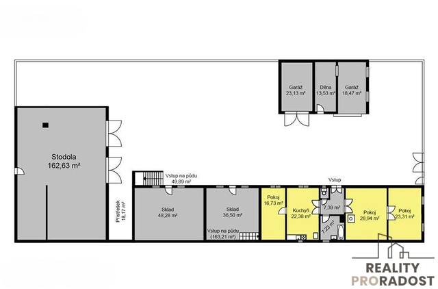
Přednosti: velká stodola a vedlejší stavby pro využití domu k podnikání Na prodej rodinný dům s obytnou částí a vedlejšími stavbami na pozemku o celkové výměře 1 124 m², nacházející se v obci Žiželice, okres Kolín. Tato nemovitost tvoří komplex budov – hlavní obytný dům, navazující hospodářská část se sýpkou v patře, prostorná stodola umístěná za domem a samostatně stojící objekt - dílna a garáže. Obytná část o dispozici 3+1 má celkovou užitnou plochu 107 m² a je ve velmi udržovaném stavu. Nachází se zde: průchozí kuchyně s jídelnou prostorný obytný pokoj dvě ložnice vstupní chodba koupelna a WC Vytápění je řešeno lokálně – kamny v jednotlivých místnostech. Dům je napojen na elektřinu, zdrojem vody je vlastní studna ale je možné dům napojit na vodovodní řad. Plyn je před domem. K domu je přivedena kanalizace a je jen potřeba se na tuto kanalizaci napojit. Pozemek o rozloze 1 124 m². Zastavěná plocha činí celkem 483 m² – hlavní budova 242 m², stodola 173 m² a vedlejší stavba 68 m². Občanská vybavenost a dopravní dostupnost V samotných Žiželicích naleznete základní služby včetně obchodů, mateřské i základní školy. Kompletní občanskou vybavenost včetně supermarketů Lidl a Penny Market poskytuje nedaleký Chlumec nad Cidlinou (cca 7 km). Zde se také nachází vlakové nádraží. Další železniční spojení je možné ze stanice Převýšov. Před domem je k dispozici autobusová zastávka. Velkým benefitem je rychlé napojení na dálnici D11 – ideální pro ty, kteří pravidelně dojíždějí do Prahy nebo Hradce Králové. Zaujala Vás tato příležitost? Neváhejte mě kontaktovat, rád Vám sdělím více informací a domluvím osobní prohlídku. Realitní makléř Martin Socha

 
zobrazit více
 
 
 


Doplňující informace:

ID inzerátu ESO: 4342014
Inzerát vydán: 24.06.2025
Inzerát aktualizován: 18.11.2025
ID zakázky v RK: 26894
Budova je z: Cihla
Stav: Dobrý
Umístění: Dobrý
Plocha pozemku: 1124 m2
Užitná plocha: 483 m2
Energetická náročnost budovy:
G - Mimořádně nehospodárná
 
 

 

Bleskový dotaz makléři

K prodeji, Rodinný dům, Žiželice, Končice

Text dotazu *
Váš telefon *
Váš e-mail
Zobrazit kontaktní informace
Odeslat
 
 
 
 

Ve schránce je 0 inzerátů.

zobrazit celou schránku
 
 

Nalezli jsme dalších 20 nemovitostí v podobné ceně.

 
 
reklama