K prodeji, Novostavba: Rodinný dům, 130 m2, Šenov, Okružní

 
 
 
Lokalita:
Šenov, Okružní
 
 
Cena:
Info o ceně u RK
 
Info u makléře
 
uvedená cena je: bez provize Nabídněte prodejci Vaši cenu 
 
 

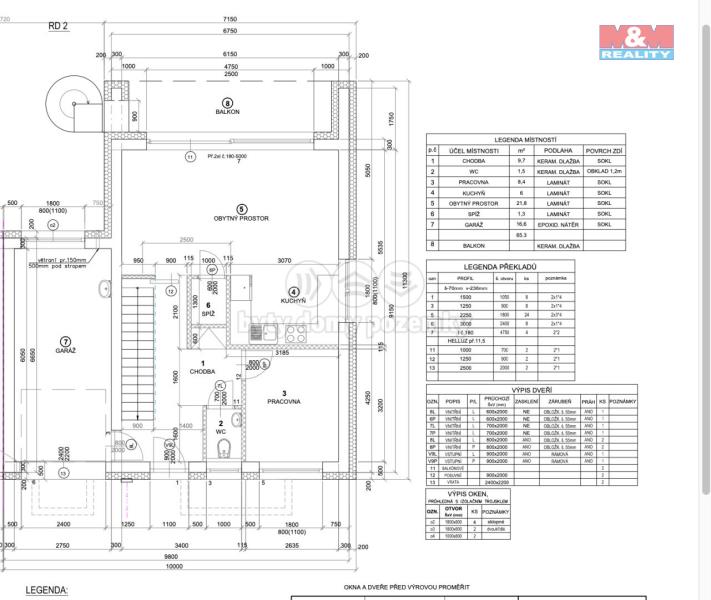
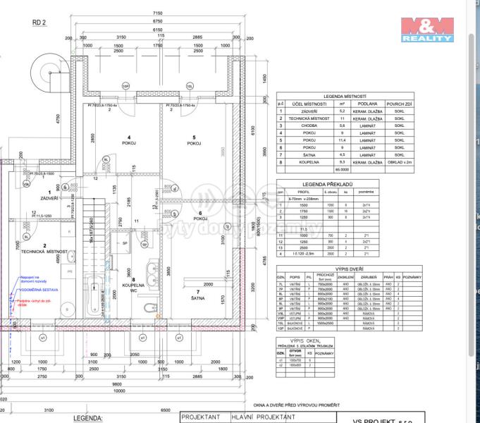
Hledáte dům snů pro svou rodinu? Chcete mít pocit že jste v přírodě, z okna se dívat na lesík a louky, kterými protéká potok a přesto mít na dosah městský komfort? A při tom Vás provoz domu bude stát jen minimální náklady. Přijd'te se podívat na novostavbu velmi netradičního domu 5+kk s terasou, balkonem a garáží. Dům je zasazen do svahu s úchvatnými výhledy na okolní přírodu. Konstrukce domu je kvalitou velmi nadstandartní. Vytápění je podlahové, zajištěno tepelným čerpadlem, které v létě chladí, ohřev vody navíc fotovoltaickým systémem. Skvělá tepelná izolace domu a kvalitní okna s trojskly, z jižní strany opatřeny venkovními žaluziemi zajišťují tepelný komfort po celý rok. Dům má svou čistírnu odpadních vod. K domu náleží zahrada o velikosti 1000 m2 orientována na jižní stranu. Náklady na bydlení jsou velmi nízké, jelikož klasifikace domu je A - mimořádně úsporná. Umístění domu je na okraji obce, kde se nachází louky a lesík, a kolem již nelze stavět, příjezd je po obecní cestě.

 
zobrazit více
 
 
 


Doplňující informace:

ID inzerátu ESO: 4349125
Inzerát vydán: 31.07.2025
Inzerát aktualizován: 01.09.2025
ID zakázky v RK: 900916052
Budova je z: Cihla
Vlastnictví: Osobní
Poloha objektu: Samostatný
Užitná plocha: 130 m2
Plocha pozemku: 1000 m2
Balkón: ANO
Energetická náročnost budovy:
A - Mimořádně úsporná
 
 

 

Bleskový dotaz makléři

K prodeji, Novostavba: Rodinný dům, 130 m2, Šenov, Okružní

Text dotazu *
Váš telefon *
Váš e-mail
Zobrazit kontaktní informace
Odeslat
 
 
 
 

Ve schránce je 0 inzerátů.

zobrazit celou schránku
 
 

Nalezli jsme dalších 11 nemovitostí v podobné ceně.

 
 
reklama