K prodeji, , 735 m2, Zemětice, Čelákovy

 
 
 
Lokalita:
Zemětice, Čelákovy
 
 
Cena:
10 000 000 Kč / za nemovitost
 
 
uvedená cena je: včetně provize Nabídněte prodejci Vaši cenu 
 
 

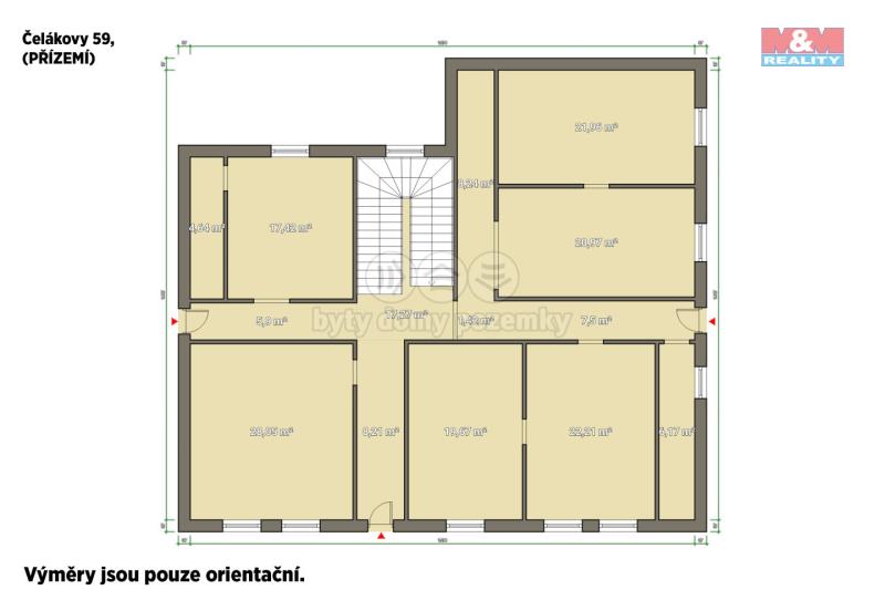
Nabízíme k prodeji prostorný nájemní dům v klidné části obce Čelákovy. Tato cihlová stavba se rozkládá na třech nadzemních podlažích a jednom podzemním, užitná plocha je 735 m². Dům je umístěn na rozlehlém pozemku o rozloze 3300 m², což poskytuje dostatek prostoru pro různé možnosti využití. Dům momentálně prochází rekonstrukcí, je zde v plánu 5 bytových jednotek o dispozici 1+1 plus půdní prostor, kde lze vybudovat dva větší byty nebo jeden velký apartmán. Dle stávajícího projektu má každá bytová jednotka parkovací stání v uzavřeném dvoře + 400m2 travnatého pozemku pro vlastní využití. Nový majitel zde může přizpůsobit interiéry dle vlastní představy. Ideální investiční příležitost pro ty, kdo hledají projekt s potenciálem v klidné lokalitě s dobrým přístupem k občanské vybavenosti. Pro více informací či prohlídku nás neváhejte kontaktovat !

 
zobrazit více
 
 
 


Doplňující informace:

ID inzerátu ESO: 4356023
Inzerát vydán: 29.08.2025
ID zakázky v RK: 900910005
Budova je z: Cihla
Stav: Před rekonstrukcí
Vlastnictví: Osobní
Umístění: Před rekonstrukcí
Nebytová plocha: 735 m2
Plocha pozemku: 3300 m2
Užitná plocha: 735 m2
Energetická náročnost budovy:
G - Mimořádně nehospodárná
 
 

 

Bleskový dotaz makléři

K prodeji, , 735 m2, Zemětice, Čelákovy

Text dotazu *
Váš telefon *
Váš e-mail
Zobrazit kontaktní informace
Odeslat
 
 
 
 

Ve schránce je 0 inzerátů.

zobrazit celou schránku
 
 

Nalezli jsme dalších 2 nemovitostí v podobné ceně.

 
 
reklama