K prodeji, Obchody, Hluboká nad Vltavou, Masarykova

 
 
 
exkluzivně
 
Lokalita:
Hluboká nad Vltavou, Masarykova
 
 
Cena:
6 630 000 Kč / za nemovitost
 
 
Nabídněte prodejci Vaši cenu 
 
 

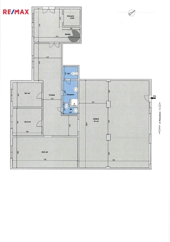
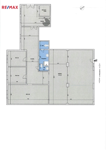
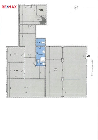
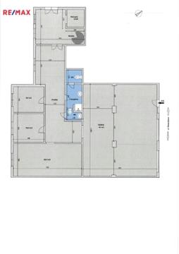
Nabízíme k prodeji obchodní prostor o výměře 219,4 m², nacházející se v historickém městě Hluboká nad Vltavou, v blízkosti centra, konkrétně v ulici Masarykova. Tento přízemní prostor má vstup z podloubí historického domu, což dodává celé lokalitě jedinečný charakter. Interiér se vyznačuje prosklenou galerií, díky které je prostor dostatečně prosvětlený a ideální pro vystavení zboží či reklamy. Při vstupu do prostor se nachází velký vstupní prostor, který slouží jako galerie, a dále zde najdete několik menších místností, které mohou být využity jako sklady či kanceláře. K dispozici je také zázemí v podobě toalety a kuchyňky, což zajišťuje pohodlí pro pracovníky. Vytápění je řešeno vlastním plynovým kotlem s rozvody do radiátorů, tímto je řešen i ohřev vody. Vodovod i kanalizace jsou obecní. Jednou z výhod tohoto prostoru je nákladní výtah a vykládací rampa v zadní části budovy, což usnadňuje manipulaci s nákladem. Příjezd ze zadní části domu a prostor pro nakládku jsou další nesporné výhody, které usnadňují logistiku. Parkování pro hosty je k dispozici veřejné, placené přímo před domem. Tento prostor je ideální pro firmy, které hledají vhodné místo pro prodejnu, sklad nebo výrobnu. Dostatek prostoru a zázemí v objektu také umožňuje poskytování služeb, např. kavárna, cukrárna, kadeřnictví, barber-shop, zubní laboratoř, kosmetický salon, sportovní aktivity, fitness, vzdělávací centrum, atd... prostor představuje ideální řešení i pro firmy zaměstnávající více pracovníků. Vzhledem k lokalitě a dispozici je možné prostor předělat i na byt, což by mohlo představovat zajímavou investiční příležitost či příležitost k příjemnému bydlení. Hluboká nad Vltavou je jedním z nejoblíbenějších míst na jihu Čech, známá svým půvabným historickým centrem a ikonickým zámkem, který je vyhledávaným turistickým cílem. Město se pyšní nejen bohatou historií, ale také rozmanitou nabídkou kulturního vyžití, restaurací a obchodů. Okolí nabízí příležitosti pro sportovní a rekreační aktivity, jako je cyklistika nebo procházky v malebné přírodě. Díky své strategické poloze je Hluboká nad Vltavou dobře dostupná a poskytuje návštěvníkům široké možnosti vyžití, což intenzivně přispívá k prosperitě místních podniků a zaručuje dobrou návštěvnost. V případě zájmu o prohlídku nás neváhejte kontaktovat. Prodávající si vyhrazuje právo vybrat kupujícího na základě jím zvolených kritérií.

 
zobrazit více
 
 
 


Doplňující informace:

ID inzerátu ESO: 4374463
Inzerát vydán: 10.12.2025
Inzerát aktualizován: 09.04.2026
ID zakázky v RK: 428811
Budova je z: Cihla
Stav: Dobrý
Umístění: Dobrý
Užitná plocha: 219 m2
Energetická náročnost budovy:
G - Mimořádně nehospodárná
 
 

 

Bleskový dotaz makléři

K prodeji, Obchody, Hluboká nad Vltavou, Masarykova

Text dotazu *
Váš telefon *
Váš e-mail
Zobrazit kontaktní informace
Odeslat
 
 
 
 

Ve schránce je 0 inzerátů.

zobrazit celou schránku
 
 

Nalezli jsme dalších 1 nemovitostí v podobné ceně.

 
 
reklama