K prodeji, Obchody, Hluboká nad Vltavou, Masarykova

 
 
 
exkluzivně
 
Lokalita:
Hluboká nad Vltavou, Masarykova
 
 
Cena:
7 990 000 Kč / za nemovitost
 
 
Nabídněte prodejci Vaši cenu 
 
 

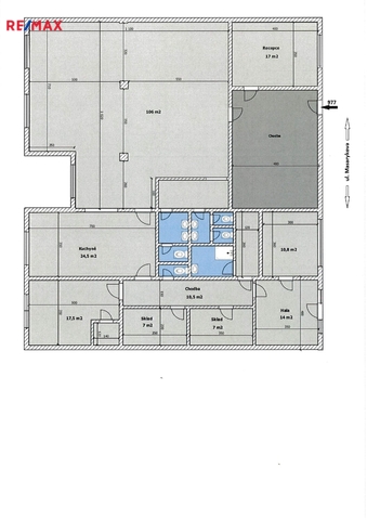
Nabízíme k prodeji obchodní prostor o výměře 241,2 m², nacházející se v historickém městě Hluboká nad Vltavou, v blízkosti centra, konkrétně v ulici Masarykova. Tento přízemní prostor má vstup z podloubí historického domu, což dodává celé lokalitě jedinečný charakter. Výhodou tohoto prostoru je vstupní recepce s okny do ulice, díky které je prostor dostatečně prosvětlený a ideální pro vystavení zboží či reklamy a uvítání pro hosty. Pro tyto účely slouží ještě další dvě místnosti, které mají okna a vstup do ulice. Díky tomu může být Vaše firma nepřehlédnutelná. Dominantou prostoru je velká vstupní hala, která může sloužit jako hlavní obchodní prostor či kanceláře. Dále zde najdete několik menších místností, které mohou být využity například jako sklady. K dispozici je také prostorné zázemí v podobě velké kuchyně, šatny, toalety a koupelny se sprchou, což zajišťuje pohodlí pro pracovníky. Vytápění je řešeno vlastním plynovým kotlem s rozvody do radiátorů, tímto je řešen i ohřev vody. Vodovod i kanalizace jsou obecní. Tento prostor je ideální pro firmy, které hledají vhodné místo pro prodejnu, sklad nebo výrobnu. Dostatek prostoru a zázemí v objektu také umožňuje poskytování služeb, např. kavárna, cukrárna, kadeřnictví, barber-shop, zubní laboratoř, kosmetický salon, sportovní aktivity, fitness, vzdělávací centrum, atd... prostor představuje ideální řešení i pro firmy zaměstnávající více pracovníků. Vzhledem k lokalitě a dispozici je možné prostor předělat i na byt, což by mohlo představovat zajímavou investiční příležitost či příležitost k příjemnému bydlení. Hluboká nad Vltavou je jedním z nejoblíbenějších míst na jihu Čech, známá svým půvabným historickým centrem a ikonickým zámkem, který je vyhledávaným turistickým cílem. Město se pyšní nejen bohatou historií, ale také rozmanitou nabídkou kulturního vyžití, restaurací a obchodů. Okolí nabízí příležitosti pro sportovní a rekreační aktivity, jako je cyklistika nebo procházky v malebné přírodě. Díky své strategické poloze je Hluboká nad Vltavou dobře dostupná a poskytuje návštěvníkům široké možnosti vyžití, což intenzivně přispívá k prosperitě místních podniků a zaručuje dobrou návštěvnost. V případě zájmu o prohlídku nás neváhejte kontaktovat.

 
zobrazit více
 
 
 


Doplňující informace:

ID inzerátu ESO: 4374465
Inzerát vydán: 10.12.2025
Inzerát aktualizován: 16.01.2026
ID zakázky v RK: 428897
Budova je z: Cihla
Stav: Dobrý
Umístění: Dobrý
Užitná plocha: 241 m2
Energetická náročnost budovy:
C - Úsporná
 
 

 

Bleskový dotaz makléři

K prodeji, Obchody, Hluboká nad Vltavou, Masarykova

Text dotazu *
Váš telefon *
Váš e-mail
Zobrazit kontaktní informace
Odeslat
 
 
 
 

Ve schránce je 0 inzerátů.

zobrazit celou schránku
 
 

Nalezli jsme dalších 5 nemovitostí v podobné ceně.

 
 
reklama