K prodeji, Obchody, Praha 2, Nusle

 
 
 
exkluzivně
 
Lokalita:
Praha 2, Nusle
 
 
Cena:
6 900 000 Kč / za nemovitost
 
 
Nabídněte prodejci Vaši cenu 
 
 

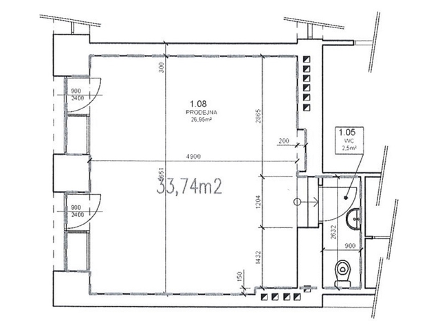
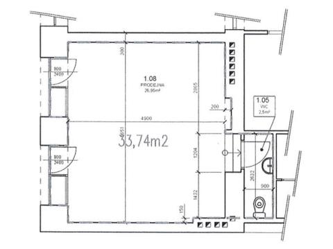
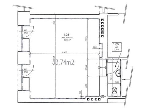
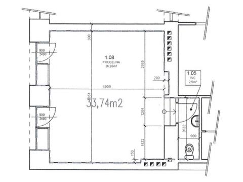
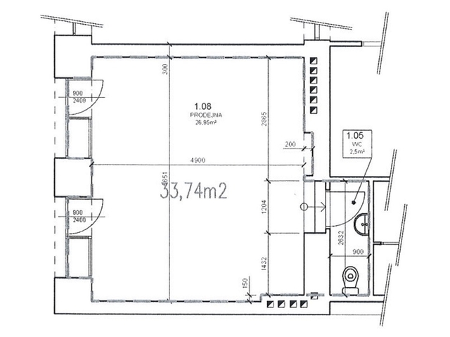
Nabízíme k prodeji kompletně zrekonstruovaný přízemní obchodní prostor o výměře 33,74 m² s dvěma samostatnými vstupy z ulice. Prostor disponuje velkými prosklenými výlohami, které zajišťují maximální viditelnost, a jsou opatřeny uzamykatelnými bezpečnostními roletami. Interiér má světlou výšku 3,4 m, což umocňuje pocit prostornosti a vzdušnosti. Atraktivní lokalita Obchod se nachází na frekventované ulici Jaromírova v městské části Nusle (Praha 2), tedy v širším centru hlavního města. Tato adresa zaručuje výbornou viditelnost a stálý pěší provoz, neboť v okolí je hustá rezidenční zástavba a fungují zde další obchody a služby. Jen minutu chůze od domu je tramvajová zastávka s přímým spojením do centra. V bezprostřední blízkosti leží oblíbený park Folimanka – vyhledávaná oddechová zóna s hřišti a sportovišti, která denně přiláká mnoho rodin, sportovců i ostatních obyvatel z okolí. Tato stabilní spádová klientela spolu s lokálními rezidenty zajišťuje dostatek potenciálních zákazníků pro jakékoli podnikání. Pronajaté – ideální pro investici Prostor je aktuálně pronajat zavedenému kosmetickému studiu, přičemž prodej se realizuje včetně tohoto nájemního vztahu. Nový vlastník tedy získá nemovitost s prověřeným dlouhodobým nájemcem a pravidelným příjmem, což z této nabídky činí velmi atraktivní investici. Od prvního dne tak bude nový majitel inkasovat stabilní výnos, aniž by musel řešit hledání nájemce. Široké možnosti využití Díky praktickému dispozičnímu řešení a dvěma vstupům lze prostor snadno rozdělit na klientskou a zázemní část. Vhodný je proto pro různé typy podnikání: skvěle poslouží jako kosmetické studio nebo nehtový salon, kadeřnictví či barber shop, masážní nebo tetovací studio, butik, showroom, ale stejně tak i jako reprezentativní kancelář firmy. Nemovitost je v osobním vlastnictví a lze ji financovat hypotékou – rádi vám pomůžeme zajistit výhodný úvěr díky spolupráci se všemi bankami na trhu. Jednotka je bez jakýchkoli právních vad či závazků. Převod vlastnického práva zajistíme formou advokátní nebo notářské úschovy dle výběru kupujícího, aby celý proces proběhl maximálně bezpečně. Pokud hledáte reprezentativní komerční prostor či stabilní investici v širším centru Prahy, neváhejte nás kontaktovat pro sjednání prohlídky.

 
zobrazit více
 
 
 


Doplňující informace:

ID inzerátu ESO: 4366237
Inzerát vydán: 24.10.2025
Inzerát aktualizován: 28.01.2026
ID zakázky v RK: 27912
Budova je z: Smíšená
Stav: Velmi dobrý
Umístění: Velmi dobrý
Užitná plocha: 34 m2
Energetická náročnost budovy:
G - Mimořádně nehospodárná
 
 

 

Bleskový dotaz makléři

K prodeji, Obchody, Praha 2, Nusle

Text dotazu *
Váš telefon *
Váš e-mail
Zobrazit kontaktní informace
Odeslat
 
 
 
 

Ve schránce je 0 inzerátů.

zobrazit celou schránku
 
 

Nalezli jsme dalších 1 nemovitostí v podobné ceně.

 
 
reklama