K prodeji, Obchody, Příbram, Pražská

 
 
 
Lokalita:
Příbram, Pražská
 
 
Cena:
19 800 000 Kč / za nemovitost
 
 
uvedená cena je: včetně provize, včetně právního servisu Nabídněte prodejci Vaši cenu 
 
 

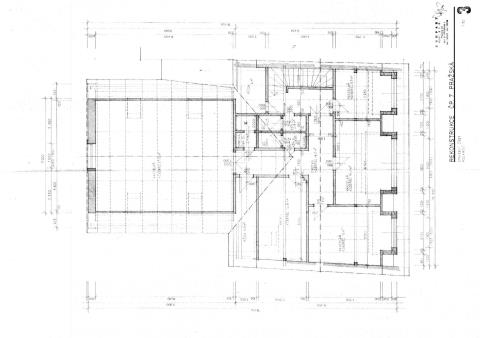
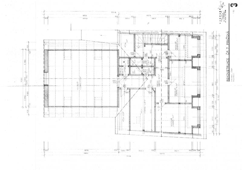
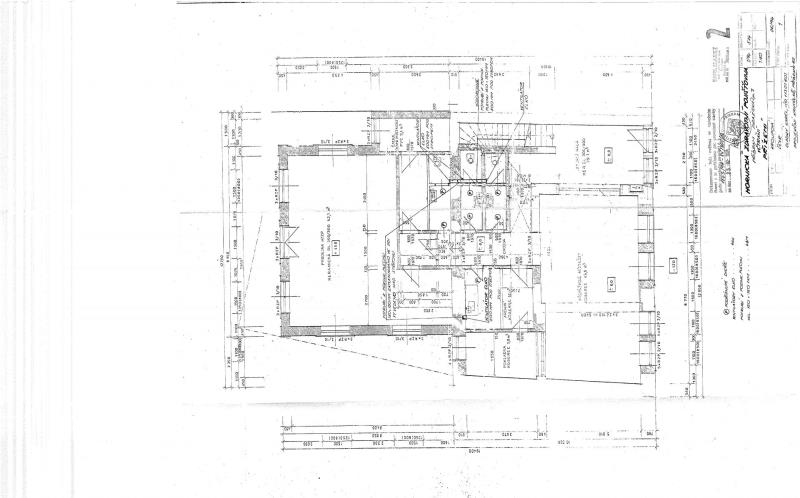
Prodej komerční víceúčelové budovy ve velmi dobrém technickém stavu v centru okresního města Příbram, část Příbram II - Pražská 7. Dům se nachází na velmi frekventované centrální části města, z jedné strany pěší zóna Pražská ulice a z druhé části příjezd autem a možnost parkování - Jiráskovy Sady. Obchod i všech 12 kanceláří je pronajato. Celková výměra pozemku je 233 m2. Z toho je cca 220 m2 zastavěné plochy. V přízemí budovy je obchod s oděvy / zavedený - již dlouhá léta / a opravna oděvů. Výměra obchodu je 150 m2, opravna oděvů 17 m2. Do obchodu je vstup z obou uvedených ulic. 1.patro - 7 kanceláří různých velikostí / plány budovy ve fotkách /, toalety dámské a pánské, společná kuchyňka / cca 126 m2 kancelářské plochy + soc. zázemí a chodby /. 2.patro - podkroví - 5 kanceláří různé velikosti, dámské a pánské toalety, společná kuchyňka / cca 114 m2 kancelářské plochy + soc. zázemí a chodby /. Předností je 6 vlastních parkovacích míst. Vybavenost : v nemovitosti je řešeno vytápění elektrickými přímotopy, odpad je do kanalizace, voda je z obecního vodovodního řádu, internet je v budově řešen společností Vyladěný internet Příbram. Celková užitná plocha obchod + kanceláře je 400 m2 + soc. zázemí a chodby. Podrobné informace o měsíčním nájemném, nákladech a dalších podrobnostech v RK. Prohlídka nemovitosti po domluvě.

 
zobrazit více
 
 
 


Doplňující informace:

ID inzerátu ESO: 4380641
Inzerát vydán: 19.01.2026
Inzerát aktualizován: 26.01.2026
ID zakázky v RK: 0
Budova je z: Cihla
Stav: Velmi dobrý
Umístění: Velmi dobrý
Užitná plocha: 407 m2
Plocha pozemku: 233 m2
Energetická náročnost budovy:
D - Méně úsporná
 
 

 

Bleskový dotaz makléři

K prodeji, Obchody, Příbram, Pražská

Text dotazu *
Váš telefon *
Váš e-mail
Zobrazit kontaktní informace
Odeslat
 
 
 
 

Ve schránce je 0 inzerátů.

zobrazit celou schránku
 
 

Nalezli jsme dalších 4 nemovitostí v podobné ceně.

 
 
reklama