K prodeji, Obchody, 282 m2, Ostrovačice, náměstí Viléma Mrštíka

 
 
 
Lokalita:
Ostrovačice, náměstí Viléma Mrštíka
 
 
Cena:
9 499 000 Kč / za nemovitost
 
 
uvedená cena je: bez provize Nabídněte prodejci Vaši cenu 
 
 

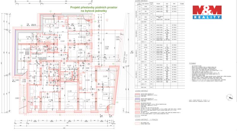
Nově nabízíme k prodeji nemovitost s velkým investičním potenciálem, nedaleko od Brna, a s výbornou dostupností na dálnici D1. Nemovitost se nachází na nám. Viléma Mrštíka v obci Ostrovačice. Užitná plocha nemovitosti činí 282 m², pozemek má celkovou rozlohu 500 m². Půdní prostory o ploše 270 m² nabízí další možné rozšíření. Nemovitost lze využít jak k podnikatelským účelům - obchod, restaurace a další, tak i k bydlení. Aktuálně je nemovitost vedena jako rodinný dům. Majitelé nechali zpracovat projekt na přestavbu nemovitosti, kde přízemí tvoří obchodní prostory a v půdních prostorech vzniknou 3 bytové jednotky (2+1, 3+1, 4kk) s velkorysou obytnou plochou a s kompletním zázemím. Na dům navazuje menší zahrada o rozloze 108 m², která svým umístěním nabízí stoprocentní soukromí. Obec Ostrovačice představuje strategicky výhodnou lokalitu – do Brna se dostanete za 15 minut a napojení na dálnici D1 je ihned za obcí. Pro více informací a termín prohlídky nás kontaktujte.

 
zobrazit více
 
 
 


Doplňující informace:

ID inzerátu ESO: 4369467
Inzerát vydán: 12.11.2025
Inzerát aktualizován: 03.01.2026
ID zakázky v RK: 900925482
Budova je z: Cihla
Stav: Před rekonstrukcí
Vlastnictví: Osobní
Umístění: Před rekonstrukcí
Nebytová plocha: 282 m2
Plocha pozemku: 500 m2
Užitná plocha: 282 m2
Energetická náročnost budovy:
G - Mimořádně nehospodárná
 
 

 

Bleskový dotaz makléři

K prodeji, Obchody, 282 m2, Ostrovačice, náměstí Viléma Mrštíka

Text dotazu *
Váš telefon *
Váš e-mail
Zobrazit kontaktní informace
Odeslat
 
 
 
 

Ve schránce je 0 inzerátů.

zobrazit celou schránku
 
 

Nalezli jsme dalších 1 nemovitostí v podobné ceně.

 
 
reklama