K prodeji, Výroba, Nedvědice

 
 
 
Lokalita:
Nedvědice
 
 
Cena:
Info o ceně u RK
 
cena k jednání
 
Nabídněte prodejci Vaši cenu 
 
 

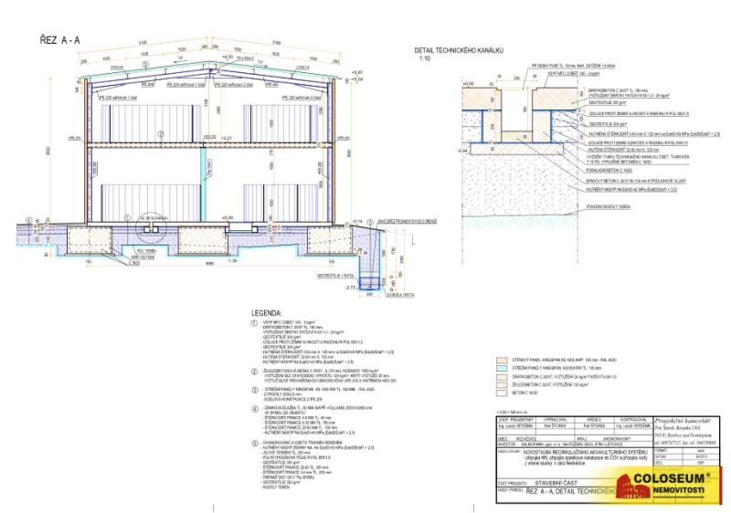
Exkluzivně nabízíme k prodeji komerční areál na okraji městyse Nedvědice, nacházejícího se na pomezí Jihomoravského kraje a Vysočiny, nedaleko Tišnova a Bystřice nad Pernštejnem. Celková plocha pozemků činí 19 015 m² (dle výpisu z katastru nemovitostí), z toho je přibližně 14 500 m² oploceno. Součástí oplocené plochy je dvoupodlažní hala kolaudované v roce 2017, která sloužila k celkovému turnusu odchovu ryb od líhně až po tržní rybu. V hale je umístěna technologie pro odchov ryb a funkční biologické čističky. Množství vody je dostatečné k jakémukoliv chovu ryb, ale i k dalšímu výrobnímu využití. Celková užitná plocha haly je 1 382 m², kromě nádrží na odchov ryb se zde nacházejí i kancelářské prostory a sociální zařízení včetně bytu pro zaměstnance. Hala je zateplena 100 mm polyuretanovým panelem, nosnost podlah je 2 000 kg/m². Venkovní manipulační plocha je tvořena betonovou deskou, areál je přizpůsoben na vjezd kamionů. Na pozemku se nachází vlastní studna, je zde odpadní jímka a elektřina. Na střeše haly je schválena instalace FVE. Areál je přístupný 24/7. Průkaz energetické náročnosti nebyl dodán, z toho důvodu je uvedena třída G. Veškeré uvedené plochy jsou přibližné a mají orientační charakter. Pro více informací nebo sjednání termínu prohlídky neváhejte kontaktovat realitního makléře.

 
zobrazit více
 
 
 


Doplňující informace:

ID inzerátu ESO: 4229503
Inzerát vydán: 13.03.2024
Inzerát aktualizován: 30.12.2025
Budova je z: Panel
Stav: Velmi dobrý
Umístění: Velmi dobrý
Užitná plocha: 1382 m2
Plocha pozemku: 19015 m2
Energetická náročnost budovy:
G - Mimořádně nehospodárná
 
 

 

Bleskový dotaz makléři

K prodeji, Výroba, Nedvědice

Text dotazu *
Váš telefon *
Váš e-mail
Zobrazit kontaktní informace
Odeslat
 
 
 
 

Ve schránce je 0 inzerátů.

zobrazit celou schránku
 
 

Nalezli jsme dalších 3 nemovitostí v podobné ceně.

 
 
reklama