K prodeji, pozemky - stavební / bydlení, 1184 m2, Brno, Lažanská

 
 
 
Lokalita:
Brno, Lažanská
 
 
Cena:
12 990 000 Kč / za nemovitost
 
 
Nabídněte prodejci Vaši cenu 
 
 

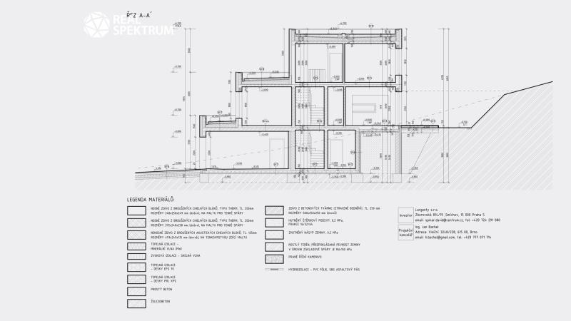
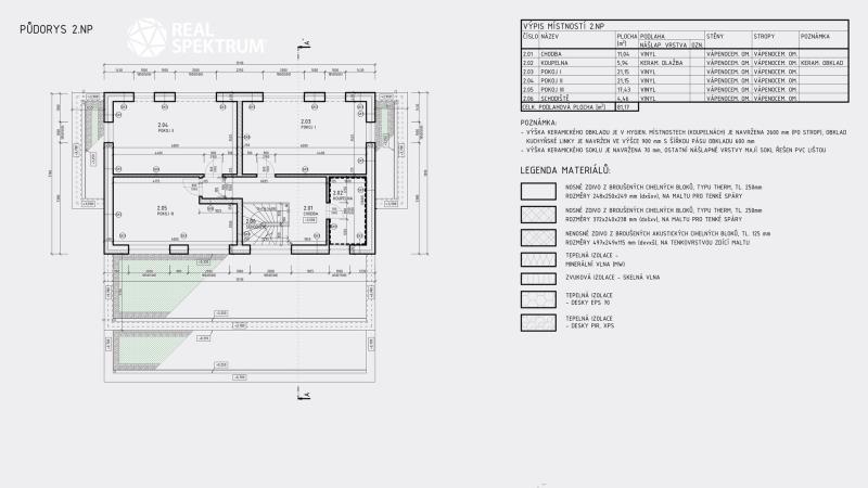
Dovolujeme si Vám nabídnout prodej pozemku s vydaným stavebním povolením na výstavbu třípodlažního rodinného domu. Jedná se o jedinečný slunný pozemek na úplném okraji obce Česká u Brna v naprostém klidu a přitom s velmi dobrou dostupností do centra Brna. Výměry: - Pozemek celkem: 1184 m² - Zastavěná plocha RD: 202 m² - Užitná plocha: 378,13 m² - Dispozice: 7kk Celková podlahová plocha (vč. terasy): 378,13 m²: - 1.PP – 122,31 m² (garáže, technická místnost, dílna, sklep) - 1.NP – 174,65 m² (obývací pokoj s kuchyňským koutem, 2x ložnice, WC, koupelna) + terasa - 2.NP – 81,17 m² (3x pokoj, WC, koupelna) Vstup do rodinného domu je z čelní strany. Ze zádveří je přístup do sklepu policového, ze kterého je následně přístup do technické místnosti a do dílny. Z dílny je přístup do technické místnosti a garáže. Ze zádveří je přístup na schodiště do 1.NP. V 1.NP je přístup z chodby do pracovny, WC, kuchyně s jídelním koutem a obývacího pokoje. Z obývacího je přístup na terasu, do ložnice, šatny a koupelny. Z chodby je dále přístup na schodiště do 2.NP. V 2.NP je koupelna a 3 pokoje. Na hranici pozemku je zavedena elektřina, voda a odpad a studna. Pro bližší informace mě neváhejte kontaktovat.

 
zobrazit více
 
 
 


Doplňující informace:

ID inzerátu ESO: 4331062
Inzerát vydán: 07.05.2025
Inzerát aktualizován: 29.09.2025
Plocha: 1184 m2
Plocha pozemku: 1184 m2
 
 

 

Bleskový dotaz makléři

K prodeji, pozemky - stavební / bydlení, 1184 m2, Brno, Lažanská

Text dotazu *
Váš telefon *
Váš e-mail
Zobrazit kontaktní informace
Odeslat
 
 
 
 

Ve schránce je 0 inzerátů.

zobrazit celou schránku
 
 

Nalezli jsme dalších 4 nemovitostí v podobné ceně.

 
 
reklama