K prodeji, pozemky - stavební / bydlení, 1782 m2, Rokytnice nad Jizerou

 
 
 
exkluzivně
 
Lokalita:
Rokytnice nad Jizerou
 
 
Cena:
10 580 000 Kč / za nemovitost
 
 
uvedená cena je: bez provize Nabídněte prodejci Vaši cenu 
 
 

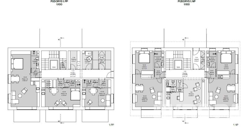
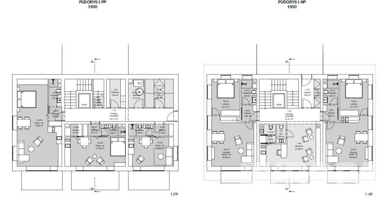
Prodej stavebního pozemku s projektem penzionu „Chalet Emma“ – Rokytnice nad Jizerou. Nabízíme stavební pozemek s kompletním projektem rodinného penzionu „Chalet Emma“ v atraktivní horské lokalitě Rokytnice nad Jizerou. Projekt je připraven ve stavu před vydáním stavebního povolení, což umožňuje rychlý start investice. Základní informace o projektu: • Rodinný penzion se 7 ubytovacími jednotkami a recepcí • Podsklepená jednopodlažní budova s obytným podkrovím • Jednotky mají vlastní sociální zařízení a kuchyňku, některé přímo s přístupem na terasu nebo balkon • Recepce, společenská místnost a úschovna sportovního vybavení • Hlavní vstup z ulice, druhý vstup z podzemního podlaží na terasu Charakteristika lokality: Pozemek se nachází v oblasti s rozvolněnou zástavbou – v okolí jsou rodinné domy, penziony a bytové domy. Nenachází se v záplavovém ani poddolovaném území. Přístup je z místní komunikace. Pozemek je součástí zastavitelného území města. Stav připravenosti projektu: • Projekt je ve stavu před vydáním stavebního povolení • Připravená plánovací smlouva • Demoliční výměr stávající stavby s nabytím právní moci • Zajištěna stanoviska dotčených orgánů • Kompletní projektová dokumentace je k dispozici Tento projekt představuje unikátní příležitost pro investory: stavební pozemek s připraveným projektem penzionu, včetně všech potřebných dokumentů, je ideální pro rychlou realizaci výstavby ubytovacího zařízení v prestižní horské lokalitě s celoroční turistickou atraktivitou.

 
zobrazit více
 
 
 


Doplňující informace:

ID inzerátu ESO: 4362104
Inzerát vydán: 30.09.2025
Inzerát aktualizován: 12.05.2026
ID zakázky v RK: 7264050
Vlastnictví: Osobní
Plocha: 1782 m2
Plocha pozemku: 1782 m2
Plyn: Zaveden
Voda: Vodovod
Vytápění: Veřejné ústřední
 
 

 

Bleskový dotaz makléři

K prodeji, pozemky - stavební / bydlení, 1782 m2, Rokytnice nad Jizerou

Text dotazu *
Váš telefon *
Váš e-mail
Zobrazit kontaktní informace
Odeslat
 
 
 
 

Ve schránce je 0 inzerátů.

zobrazit celou schránku
 
 

Nalezli jsme dalších 1 nemovitostí v podobné ceně.

 
 
reklama