K prodeji, pozemky - stavební / bydlení, 470 m2, Babice, Na Hujaru

 
 
 
Lokalita:
Babice, Na Hujaru
 
 
Cena:
3 099 355 Kč / za nemovitost
 
 
Nabídněte prodejci Vaši cenu 
 
 

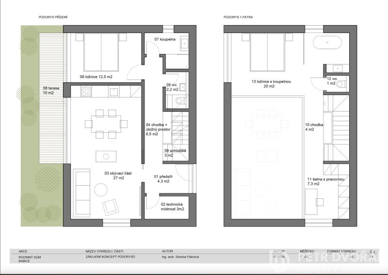
Prodej pozemku pro výstavbu celoročně obytného domu – skvělá alternativa rodinného bydlení v přírodě Nabízíme pozemek o velikosti 470 m2 v atraktivní lokalitě obce Babice u Říčan. Na pozemku se nachází chata o zastavěné ploše 58 m2, která je určena k demolici. Skutečnou hodnotou této nabídky je pozemek s možností výstavby nového celoročně obytného domu o zastavěné ploše až 80 m2 a podlahové ploše až 160 m2 při dvou podlažích. Jedná se o ideální příležitost pro ty, kteří hledají trvalé bydlení v přírodě s výbornou dostupností do Prahy. Jedinečné umístění v sousedství školy Open Gate Pozemek sousedí s otevřeným prostranstvím prestižní školy Open Gate, kde se volně pasou koně, což vytváří klidné a výjimečné prostředí. Lokalita kombinuje blízkost přírody s perfektní dostupností – autem jste v centru Prahy do 30 minut, vlakem z Kolovrat za 20 minut. Do Kolovrat je to 10 minut jízdy autem. Technické parametry a infrastruktura Elektřina: 220 V i 380 V (přívod do spodní části) Voda: Vlastní vrt i kopaná studna Odpad: Septik o kapacitě 1,5 m³ Oplocený pozemek s vrátky přímo k výběhu koní Zděný bazén 5 × 4 m (připravený k obnově) Možnost trvalého pobytu – evidenční číslo Komfortní zázemí a občanská vybavenost Obec Babice nabízí obchod s potravinami, kavárnu, hospodu, tenisové kurty, rugbyové hřiště i celoroční plavecký bazén ve škole Open Gate. Jedná se o lokalitu, která nabízí nejen klid a přírodu, ale i pohodlné zázemí pro každodenní život. Možnosti výstavby dle vašich představ V galerii naleznete inspiraci pro výstavbu moderního domu s otevřeným loftovým konceptem a pochozí střechou, která může sloužit jako terasa. Alternativou je tradiční řešení se sedlovou střechou a dalším pokojem, které může lépe vyhovovat rodinnému bydlení. Prohlídky a kontakt Prohlídky probíhají výhradně v sobotu odpoledne, pouze po předchozí domluvě. Vyhrazeno pro vážné zájemce. Takové příležitosti se objevují zřídka – pozemek s výjimečnou atmosférou a potenciálem pro moderní celoroční bydlení. Nečekejte, až ho objeví někdo jiný – kontaktujte nás ještě dnes.

 
zobrazit více
 
 
 


Doplňující informace:

ID inzerátu ESO: 4291032
Inzerát vydán: 09.11.2024
Inzerát aktualizován: 03.08.2025
Plocha: 470 m2
Plocha pozemku: 470 m2
 
 

 

Bleskový dotaz makléři

K prodeji, pozemky - stavební / bydlení, 470 m2, Babice, Na Hujaru

Text dotazu *
Váš telefon *
Váš e-mail
Zobrazit kontaktní informace
Odeslat
 
 
 
 

Ve schránce je 0 inzerátů.

zobrazit celou schránku
 
 

Nalezli jsme dalších 9 nemovitostí v podobné ceně.

 
 
reklama