K prodeji, pozemky - stavební / bydlení, 972 m2, Žabčice, Tichá

 
 
nový
 
Lokalita:
Žabčice, Tichá
 
 
Cena:
6 200 000 Kč / za nemovitost
 
 
Nabídněte prodejci Vaši cenu 
 
 

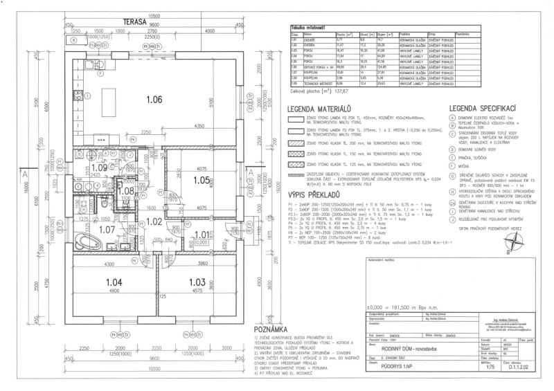
Prodej stavebního pozemku v Žabčicích na klidné ulici Tichá, katastrální území Žabčice, okres Brno – venkov. Pozemek parc.č. 1104/1 o výměře 972 m2 je určen k výstavbě rodinného domu. Jedná se o rovinatý zasíťovaný pozemek obdélníkového tvaru s šířkou 18 m a délkou 54 m, který se nachází na hranici katastru obce Žabčice a Přísnotice a tvoří čtvrť, které se říká Malé Žabčice. Všechny sítě (kanalizace, vodovod, elektřina, plyn, optika) jsou na hranici pozemku. Je tedy možné využít občanskou vybavenost i dopravní spojení obou obcí. Na výstavbu rodinného domu je vypracovaná projektová dokumentace a bylo zažádáno o stavební povolení. Přízemní rodinný dům o velikosti 4+kk s užitnou plochou 138 m2 (zádveří, chodba, 3x ložnice, obývací pokoj s kuchyňským koutem, koupelna, WC s umyvadlem, technická místnost). Projektová dokumentace je k nahlédnutí k dispozici a je součástí kupní ceny. Občanská vybavenost v Žabčicích je na dobré úrovni a zahrnuje základní školu, mateřskou školu, samoobsluhu, poštu, knihovnu, dům s pečovatelskou službou, benzinku, sokolovnu, restaurace a sportoviště, koupaliště, což pokrývá většinu potřeb místních obyvatel. Autem jsou Žabčice z Brna vzdálené cca 30 km (25 min). Město Židlochovice se nachází cca 5 km (7 min) a město Pohořelice cca 8 km (9 min). Dopravní spojení: Žabčice – vlak Brno, Přísnotice – autobus Žabčice – přestup vlak Brno, Žabčice, Přísnotice – autobus Židlochovice, přestup autobus Brno. Odměna zprostředkovatele není zahrnuta v uvedené ceně.

 
zobrazit více
 
 
 


Doplňující informace:

ID inzerátu ESO: 4381145
Inzerát vydán: 22.01.2026
ID zakázky v RK: 55633
Plocha: 972 m2
Plocha pozemku: 972 m2
 
 

 

Bleskový dotaz makléři

K prodeji, pozemky - stavební / bydlení, 972 m2, Žabčice, Tichá

Text dotazu *
Váš telefon *
Váš e-mail
Zobrazit kontaktní informace
Odeslat
 
 
 
 

Ve schránce je 0 inzerátů.

zobrazit celou schránku
 
 

Nalezli jsme dalších 11 nemovitostí v podobné ceně.

 
 
reklama