K pronájmu, Byt 1+kk, 31 m2, Brandýs nad Labem, Augustina Lukeše

 
 
 
Lokalita:
Brandýs nad Labem, Augustina Lukeše
 
 
Cena:
14 500 Kč / za nemovitost
 
2300
 
uvedená cena je: bez provize, včetně právního servisu Nabídněte prodejci Vaši cenu 
 
 

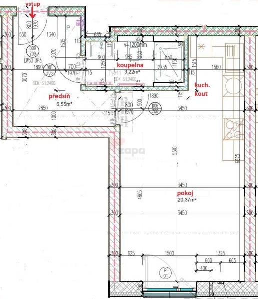
Exkluzivně nabízíme nový světlý byt o velikosti 1+kk o velikosti 31 se sklepem 2m2, v novostavbě rezidenčního bytového komplexu Bydlení Brandýs z roku 2024 v ulici Augustina Lukeše v Brandýse nad Labem. Byt se nachází ve 4. patře s výtahem, je vybaven novou kuch. linkou s vestavěnými spotřebiči (el. a mikrovlnná trouba, sklokeramická varná deska, myčka, lednice s mrazákem) a pračkou, jinak je byt nezařízený. V koupelně je sprchový kout a WC, na podlahách je plovoucí podlaha nebo dalžba, okna mají el. předokenní žaluzie, v bytě zaveden kabel pro internet. K bytu náleží zděný sklep v přízemí domu. Byt je skvětlý se západní orientací, vytápění bytu je ústřední dálkové, parkování je možné před domem nebo v okolních ulicích. Byt je volný od 19.12. 2025 (může být i později, od 1. 1. 2026), ideální pro 1 osobu( max 2 osoby) bez zvířat. Měsíční nájemné činí 14.000,-Kč+ poplatky 2.300,-Kč + elektřina cca 500,-Kč + internet. Při podpisu smlouvy je nutné uhradit 1. nájem , kauci 2 nájmy. a provizi RK 16.800,-Kč. Dopravní dostupnost je výborná- příměstská doprava v rámci PID (7min chůze)- 35min na metro Černý most, 40m na metro Letňany nebo rychlostní komunikace R10 směrem Praha a Mladá Boleslav ( autem do 15min. stanice metra B Černý Most a 20 min metro C Letňany ). Občanská vybavenost do 7 min. chůzí (supermarket Lidl, Kaufland a Tesco, restaurace, kavárny, lékař). Lokalita nabízí i možnost relaxace v blízkých lesích a sportovní vyžití- cyklostezky podél Labe, koupání a vodní sporty (jezera Lhota a Proboštská jezera), workoutová hřiště, kulturní akce apod. V případě zájmu o prohlídku nás neváhejte kontaktovat.

 
zobrazit více
 
 
 


Doplňující informace:

ID inzerátu ESO: 4368658
Inzerát vydán: 07.11.2025
Inzerát aktualizován: 09.12.2025
ID zakázky v RK: 0
Budova je z: Cihla
Stav: Velmi dobrý
Vlastnictví: Osobní
Umístění: Velmi dobrý
Obytná plocha: 31 m2
Užitná plocha: 33 m2
Podlahová plocha: 31 m2
Energetická náročnost budovy:
B - Velmi úsporná
 
 

 

Bleskový dotaz makléři

K pronájmu, Byt 1+kk, 31 m2, Brandýs nad Labem, Augustina Lukeše

Text dotazu *
Váš telefon *
Váš e-mail
Zobrazit kontaktní informace
Odeslat
 
 
 
 

Ve schránce je 0 inzerátů.

zobrazit celou schránku
 
 

Nalezli jsme dalších 2647 nemovitostí v podobné ceně.

 
 
reklama