K pronájmu, Byt 2+kk, 43 m2, Praha 8, Kyselova

 
 
nový
 
Lokalita:
Praha 8, Kyselova
 
 
Cena:
19 500 Kč / za nemovitost
 
 
Nabídněte prodejci Vaši cenu 
 
 

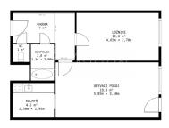
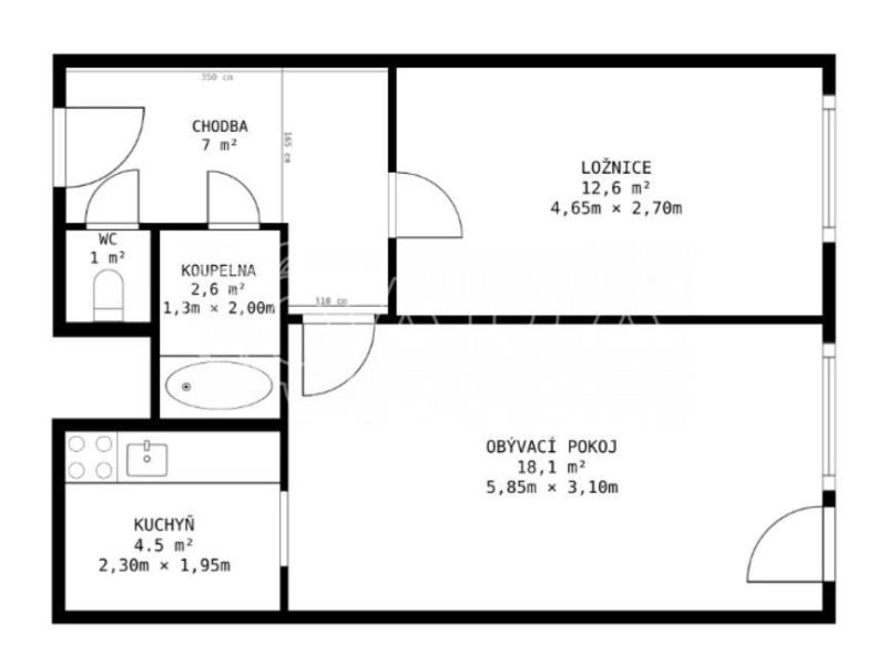
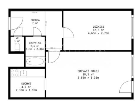
Hledáte příjemné bydlení s perfektní dostupností do centra, ale zároveň chcete mít přírodu na dosah ruky? Nabízíme k dlouhodobému pronájmu útulný a velmi prosvětlený byt o dispozici 2+kk a celkové ploše 43 m², který se nachází v oblíbené lokalitě pražských Kobylis v ulici Kyselova. Byt je po částečné rekonstrukci a nachází se ve 3. patře revitalizovaného panelového domu s výtahem. Na chodbě se nachází společná lodžie, kterou lze využívat. Lokalita a občanská vybavenost: Ulice Kyselova nabízí naprosto bezkonkurenční polohu. Doprava: Stanice metra C (Ládví) a tramvajové/autobusové zastávky jsou vzdálené pouhé 1 - 2 minuty chůze. V centru Prahy jste za 15 minut. Služby v okolí: V bezprostřední blízkosti najdete supermarkety, lékárnu, poštu, polikliniku, restaurace i pravidelné farmářské trhy. Příroda a sport: Kousek od domu začíná rozlehlý Ďáblický háj, ideální na procházky nebo běhání. Nedaleko je také koupaliště Ládví. Finanční podmínky: Měsíční nájemné: 19 500 Kč Zúčtovatelné poplatky: 3 965 Kč (včetně topení, elektřiny, vody a služeb v domě) Vratná kauce: 25 000 Kč Provize RK: 23 465 Kč Pro více informací nebo sjednání prohlídky mě neváhejte kontaktovat!

 
zobrazit více
 
 
 


Doplňující informace:

ID inzerátu ESO: 4400758
Inzerát vydán: 27.04.2026
ID zakázky v RK: 20184
Budova je z: Panel
Stav: Velmi dobrý
Vlastnictví: Osobní
Umístění: Velmi dobrý
Obytná plocha: 43 m2
Užitná plocha: 43 m2
Podlahová plocha: 43 m2
Energetická náročnost budovy:
C - Úsporná
 
 

 

Bleskový dotaz makléři

K pronájmu, Byt 2+kk, 43 m2, Praha 8, Kyselova

Text dotazu *
Váš telefon *
Váš e-mail
Zobrazit kontaktní informace
Odeslat
 
 
 
 

Ve schránce je 0 inzerátů.

zobrazit celou schránku
 
 

Nalezli jsme dalších 49 nemovitostí v podobné ceně.

 
 
reklama