K pronájmu, Byt 3+kk, 106 m2, Praha 2, Bělehradská

 
 
 
Lokalita:
Praha 2, Bělehradská
 
 
Cena:
36 200 Kč / za nemovitost
 
vratná jistota, náklady na bydlení 7695 Kč, poplatek za podnájem
 
Nabídněte prodejci Vaši cenu 
 
 

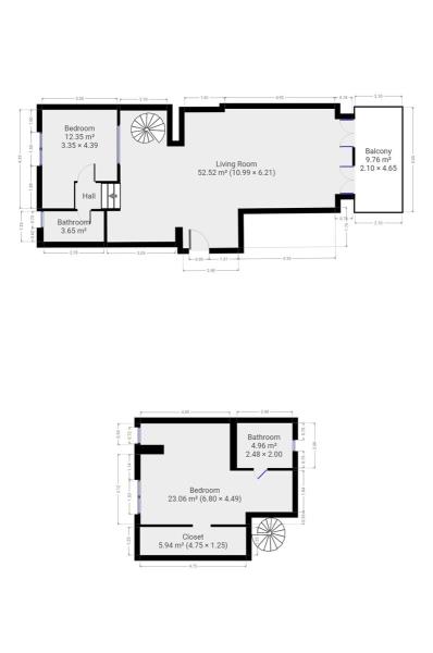
K dlouhodobému podnájmu nabízíme krásný klimatizovaný mezonetový byt o dispozici 3+kk v centru Prahy - Vinohrady. Byt o celkové výměře 106 m2 se nachází v pátém patře cihlového domu s výtahem. K bytu navíc patří krásná terasa s výhledem na Prahu - Vinohrady, plynový gril, jídelní stůl a markýza. Byt se nabízí plně vybavený. Na chodbě je velká vestavěná skříň. Ve spodním patře se nachází kuchyň s obývací částí a ve vrchním patře 2 ložnice s koupelnami. Kuchyně disponuje elektrickou troubou, myčkou, lednicí, mikrovlnnou troubou, indukční deskou s digestoří a rychlovarnou konvicí. V obývací části pokoje můžeme nalézt obývací stěnu s televizí, rozkládací gauč, jídelní stůl se šesti židlemi a vstup na terasu. Naproti kuchyni jsou schody, které vedou do druhého patra. Pod a za schody jsou úložné prostory. Vedle kuchyně můžeme nalézt vstup do mezipatra, kde se nachází dětský pokoj a koupelna s toaletou. V druhém patře se nachází pracovní stůl s židlí, druhá koupelna s pračkou a ložnicí. Součástí ložnice je i knihovna a prostorná šatna. Po celém bytě jsou dřevěné a laminátové podlahy a klimatizace. Na oknech jsou elektrické rolety. Byt je volný k nastěhování od 01.05.2026. Uvedena energetická kategorie G, jelikož nemáme k dispozici PENB. Byt pronajímá Ideální nájemce - služba, se kterou budete bydlet bezstarostně a za férových podmínek. Když se něco přihodí, k dispozici jsou správci, kteří s vámi vše vyřeší. Pomůžeme s veškerou administrativou, s nastavením plateb a zajistíme vám speciální pojištění. Pojďte bydlet s námi!

 
zobrazit více
 
 
 


Doplňující informace:

ID inzerátu ESO: 4042560
Inzerát vydán: 03.05.2022
Inzerát aktualizován: 29.04.2026
ID zakázky v RK: 2828
Budova je z: Cihla
Stav: Velmi dobrý
Vlastnictví: Osobní
Umístění: Velmi dobrý
Obytná plocha: 106 m2
Terasa: ANO
Užitná plocha: 106 m2
Podlahová plocha: 106 m2
 
 

 

Bleskový dotaz makléři

K pronájmu, Byt 3+kk, 106 m2, Praha 2, Bělehradská

Text dotazu *
Váš telefon *
Váš e-mail
Zobrazit kontaktní informace
Odeslat
 
 
 
 

Ve schránce je 0 inzerátů.

zobrazit celou schránku
 
 

Nalezli jsme dalších 23 nemovitostí v podobné ceně.

 
 
reklama