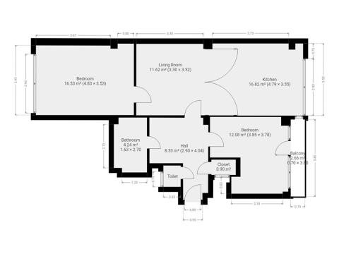
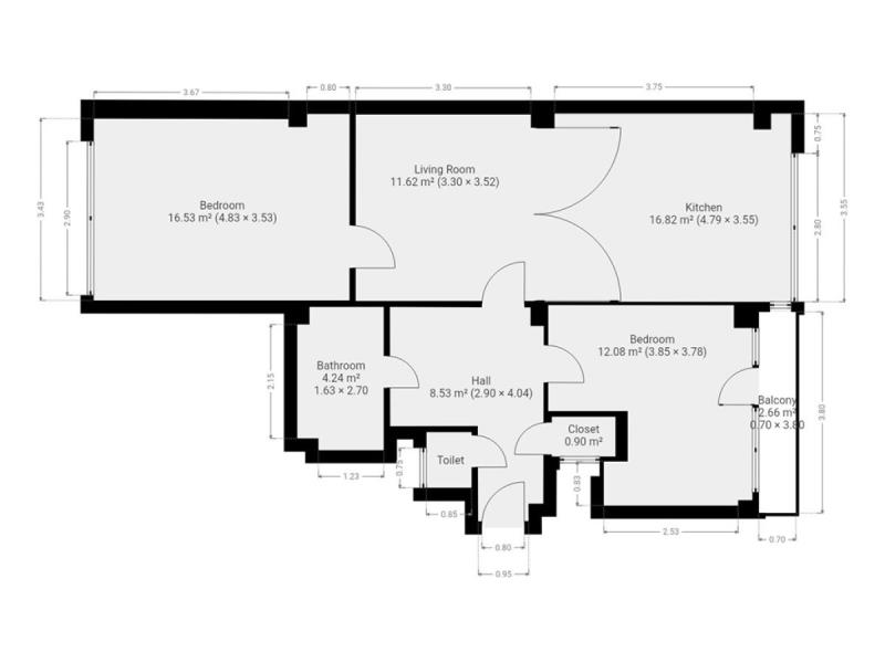
K dlouhodobému podnájmu nabízíme prosluněný byt po celkové rekonstrukci, o dispozici 3+kk ve vyhledávané lokalitě Praha - Vinohrady. Byt o podlahové ploše 70 m2 se nachází ve čtvrtém patře cihlového domu s výtahem. Byt se nabízí částečně vybavený. Nová kuchyně disponuje lednicí, elektrickou troubou, indukční varnou deskou, myčkou a digestoří. Dále jídelním stolem s židlemi a křeslem. Obývací pokoj, který je možné plně otevřít a propojit s kuchyní, disponuje sedačkou a křeslem, konferenčním stolem a tv stolkem. Hlavní ložnice disponuje starší komodou a je situovaná do klidného vnitrobloku. Druhá ložnice zůstává nevybavená, má navíc balkon do ulice. Nadstandardní koupelna disponuje vanou, závěsnou sanitou a pračkou. Toaleta je samostatně. V předsíni se nachází prostorná komora. Vytápění a ohřev vody je zde dálkově, v bytě není plyn. V okolí domu najdeme veškerou potřebnou infrastrukturu. Metro Jiřího z Poděbrad se nachází 3 minuty pěšky. Byt je volný k nastěhování od 1.2.2026. Majitel preferuje zájemce bez domácích mazlíčků. Uvedena energetická kategorie G, jelikož nemáme k dispozici PENB. Byt pronajímá Ideální nájemce - služba, se kterou budete bydlet bezstarostně a za férových podmínek. Když se něco přihodí, k dispozici jsou správci, kteří s vámi vše vyřeší. Pomůžeme s veškerou administrativou, s nastavením plateb a zajistíme vám speciální pojištění. Pojďte bydlet s námi!
Tel: 222 703 030 podpora@idealninajemce.cz
Milady Horákové 1957/13, 60200 Brno idealninajemce.cz
Ve schránce je 0 inzerátů.
K pronájmu, Byt 2+kk, 49 m2 Bořivojova
K pronájmu, Byt 1+kk, 64 m2 Ke kapslovně
K pronájmu, Byt 2+kk, 52 m2 Bořivojova
K pronájmu, Byt 2+kk, 50 m2 náměstí Jiřího z Lobkovic
K pronájmu, Byt 1+kk, 40 m2 Lucemburská
K pronájmu, Byt 2+kk, 62 m2 Dagmar Burešové
K pronájmu, Byt 3+kk, 109 m2 Bořivojova
K pronájmu, Byt 3+1, 76 m2 Čajkovského