K pronájmu, Byt 4+kk, 127 m2, Mokrá-Horákov

 
 
 
Lokalita:
Mokrá-Horákov
 
 
Cena:
35 000 Kč / za nemovitost
 
vratná jistota , náklady na bydlení 4727 Kč, poplatek za podnájem
 
Nabídněte prodejci Vaši cenu 
 
 

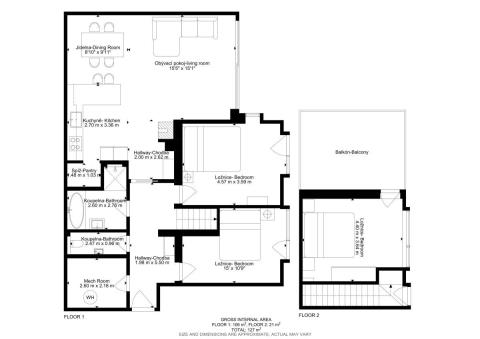
K dlouhodobému pronájmu nabízíme luxusní byt v krásném rodinném domě o celkové užitné ploše [127 m²] s prostornou terasou a zahradou o velikosti přibližně [250 m²]. Dům má dvě podlaží a k dispozici jsou také dvě parkovací stání přímo u nemovitosti. Nemovitost je částečně vybavená dle fotografií a nabízí velmi komfortní bydlení v klidném prostředí nedaleko Brna. V prvním patře se nachází prostorný obývací pokoj propojený s kuchyňským koutem, jehož součástí je také sedací souprava. Kuchyňská linka je plně vybavena spotřebiči včetně myčky nádobí. Dále je zde koupelna s vanou a toaletou, technická místnost a dva samostatné pokoje vhodné například jako ložnice, dětský pokoj či pracovna. Ve druhém patře se nachází další pokoj a velká terasa, která poskytuje příjemné místo k relaxaci i posezení. Dům se nachází v krásné a klidné lokalitě v blízkosti Brna s velmi dobrou dostupností do centra města. Autem se do centra dostanete přibližně za 15 minut, veřejnou dopravou (autobus a MHD) přibližně za 40 minut. V okolí je k dispozici základní občanská vybavenost, například pošta, mateřská škola, knihovna, koupaliště a další služby. Dům je k dispozici od 1. 5. 2026. První čtyři fotografie jsou vizualizace s nábytkem. Byt pronajímá Ideální nájemce – služba, se kterou budete bydlet bezstarostně a za férových podmínek. Když se něco přihodí, k dispozici jsou správci, kteří s vámi vše vyřeší. Pomůžeme s veškerou administrativou, s nastavením plateb a zajistíme vám speciální pojištění. Pojďte bydlet s námi!

 
zobrazit více
 
 
 


Doplňující informace:

ID inzerátu ESO: 4323947
Inzerát vydán: 04.04.2025
Inzerát aktualizován: 16.04.2026
ID zakázky v RK: 6099
Budova je z: Cihla
Stav: Velmi dobrý
Vlastnictví: Osobní
Umístění: Velmi dobrý
Obytná plocha: 127 m2
Užitná plocha: 127 m2
Podlahová plocha: 127 m2
Plocha zahrady: 125 m2
Energetická náročnost budovy:
B - Velmi úsporná
 
 

 

Bleskový dotaz makléři

K pronájmu, Byt 4+kk, 127 m2, Mokrá-Horákov

Text dotazu *
Váš telefon *
Váš e-mail
Zobrazit kontaktní informace
Odeslat
 
 
 
 

Ve schránce je 0 inzerátů.

zobrazit celou schránku
 
 

Nalezli jsme dalších 6 nemovitostí v podobné ceně.

 
 
reklama