K pronájmu, Byt 5+kk, 120 m2

 
 
nový
 
Lokalita:
 
 
Cena:
35 000 Kč / za nemovitost
 
+ poplatky 850,Kč/os. + elektřina, plyn.
 
uvedená cena je: bez provize Nabídněte prodejci Vaši cenu 
 
 

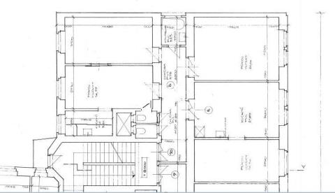
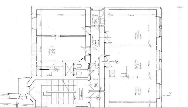
Nabízíme k pronájmu prostorný a světlý byt 5+kk, o celkové podlahové ploše 120m2, který prošel před pár lety rekonstrukcí. Byt se nachází ve 3 NP, s výtahem do mezipatra domu. Skládá se z velké vstupní předsíně (chodby), která je středem bytu, a z které se viz přiložený půdorys vstupuje do obytných místností. Dispozice celkem pěti prostorných pokojů, z toho tři jsou samostatné a neprůchozí (vhodné pro spolubydlení) a dva jsou průchozí (obývací pokoj) a pokoj užívaný historicky jako velká jídelna, který je průchozí do menšího prostoru kuchyně, která je vybavená menší kuchyňskou linkou (kombinovaný sporák, plynová varná deska, místo pro případnou myčku nádobí. Koupelna s vanou, místem pro pračku a vlastním plynovým etážovým kotlem, dále 2x samostatné WC. Podlahy jsou parketové a pvc. Lokalita pražských Vinohrad nabízí perfektní bydlení s s kompletní občanskou vybaveností ( v blízkosti tramvajová zastávka a pěší chůzí dostupné metro Náměstí míru), nedaleko vstupu do Riegrových sadů. Prohlídky možné po domluvě s makléřem. Byte je volný k nastěhování od 1. března 2026. Z důvodu absence PENB uvádíme energetickou třídu G, údaj není relevantní.

 
zobrazit více
 
 
 


Doplňující informace:

ID inzerátu ESO: 4382508
Inzerát vydán: 02.02.2026
ID zakázky v RK: 7337640
Budova je z: Cihla
Stav: Po rekonstrukci
Vlastnictví: Osobní
Umístění: Po rekonstrukci
Zařízení bytu: Nezařízený
Obytná plocha: 120 m2
Plyn: Zaveden
Voda: Vodovod
Vytápění: Ústřední plynové
Parkování: U domu (veřejné)
Užitná plocha: 120 m2
Podlahová plocha: 120 m2
Energetická náročnost budovy:
G - Mimořádně nehospodárná
 
 

 

Bleskový dotaz makléři

K pronájmu, Byt 5+kk, 120 m2

Text dotazu *
Váš telefon *
Váš e-mail
Zobrazit kontaktní informace
Odeslat
 
 
 
 

Ve schránce je 0 inzerátů.

zobrazit celou schránku
 
 

Nalezli jsme dalších 562 nemovitostí v podobné ceně.

 
 
reklama