K pronájmu, Jiné komer. prostory, Řevnice, Komenského

 
 
 
Lokalita:
Řevnice, Komenského
 
 
Cena:
165 Kč / za nemovitost
 
+ služby, energie
 
uvedená cena je: k jednání Nabídněte prodejci Vaši cenu 
 
 

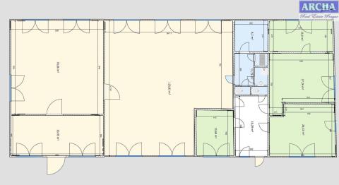
Nabízíme k nájmu víceúčelový objekt 388 m2 - výroba, sklad a kanceláře se zázemím. Objekt se nachází v Řevnicích, asi 15 minut autem od hranic Hlavního města Praha. Velikost objektu: 380 m2 Cena nájmu: 165 Kč/m2/měsíc + vlastní spotřeba. Objekt je dělen na výrobní a skladové prostory (cca 2/3) a kanceláře a zázemí, vč. archivu. Prostory jsou dnes plně využívány, zkolaudovány, vytápěné a moderní. 1 x vrata do výrobní části a 1 x vstup do administrativní části. Původní využití - textilní výroba a sklad. Příjezd veškeré nákladní a balíkové dopravy do 12,5t. Vstupy v úrovni venkovní komunikace. Zářivkové osvětlení, vícenásobné WC a koupelna, 4x kancelář - viz plánek. Nájem možný od 09/2025, dohodou. Provizi neplatíte ARCHA realitní kancelář PRAHA Telefon: 737 851 059, 702 072 257, 608 135 458 Dat. schránka: vdc4dg E-mail: archa-rk@seznam.cz www.instagram.com/nemovitosti_archa www.facebook.com/nemovitosti.archa www.twitter.com/archa_life www.archa-rk.cz

 
zobrazit více
 
 
 


Doplňující informace:

ID inzerátu ESO: 4346961
Inzerát vydán: 17.07.2025
Inzerát aktualizován: 23.09.2025
ID zakázky v RK: 0
Budova je z: Cihla
Stav: Velmi dobrý
Umístění: Velmi dobrý
Užitná plocha: 380 m2
Plocha pozemku: 600 m2
 
 

 
 
 

Bleskový dotaz makléři

K pronájmu, Jiné komer. prostory, Řevnice, Komenského

Text dotazu *
Váš telefon *
Váš e-mail
Zobrazit kontaktní informace
Odeslat
 
 
 
 

Ve schránce je 0 inzerátů.

zobrazit celou schránku
 
 

Nalezli jsme dalších 8 nemovitostí v podobné ceně.

 
 
reklama