K pronájmu, Sklady, Průhonice

 
 
 
Lokalita:
Průhonice
 
 
Cena:
214 Kč / za nemovitost
 
k jednání
 
uvedená cena je: k jednání Nabídněte prodejci Vaši cenu 
 
 

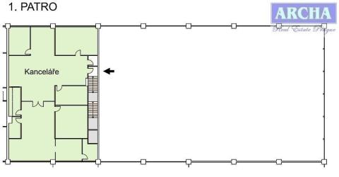
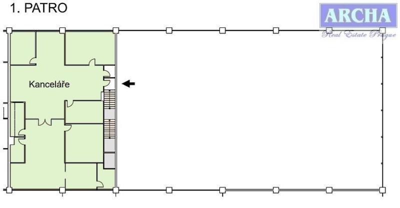
Nabízíme k nájmu sklad s prodejnou a kancelářemi v ČESTLICÍCH u Prahy na Dálnici D1 Praha - Brno. Areál je umístěn v atraktivní komerční zóně Průhonice-Čestlice, přilehlé k dálnici. Budovy plně klimatizovány. Nabízíme uvolněnou část k pronájmu od 3/2025 . Celková plocha k nájmu: 1.393 m2 z toho : - sklady ( přízemí): 780 m2 - prodejna - Showroom (přízemí): 228 m2 - soc.. zázemí, ostatní ( přízemí): 91 m2 - kanceláře v patře: 294 m2 Cena nájmu sklady: 214 Kč/m2/měsíc Cena nájmu kanceláře, prodejna: 289 Kč/m2/měsíc Nabídka se skládá z přízemní haly + showroom + zázemí a dále v patře z administrativního celku (viz. plány). Nájem lze realizovat pouze jako celek. Příjezd TIR. 2 x vjezdová rolovací vrata. Využitelná výška: až 7 m Zázemí pro sklad v přízemí, a samostatně i pro kanceláře v patře. Administrativní část je prostorově variabilní, lze upravit na míru zákazníkovy. Nájem možný od 03/2025. Provizi neplatíte ARCHA realitní kancelář PRAHA Telefon: 737851059, 702072257, 608135458 Email: archa-rk@seznam.cz Dat.sch.: 4td8nr3 www.facebook.com/nemovitosti.archa www.twitter.com/archa_life www.instagram.com/nemovitosti_archa www.archa-rk.cz

 
zobrazit více
 
 
 


Doplňující informace:

ID inzerátu ESO: 4316287
Inzerát vydán: 05.03.2025
Inzerát aktualizován: 23.09.2025
ID zakázky v RK: 0
Budova je z: Smíšená
Stav: Velmi dobrý
Umístění: Velmi dobrý
Užitná plocha: 1393 m2
Plocha pozemku: 1393 m2
Energetická náročnost budovy:
C - Úsporná
 
 

 

Bleskový dotaz makléři

K pronájmu, Sklady, Průhonice

Text dotazu *
Váš telefon *
Váš e-mail
Zobrazit kontaktní informace
Odeslat
 
 
 
 

Ve schránce je 0 inzerátů.

zobrazit celou schránku
 
 

Nalezli jsme dalších 5 nemovitostí v podobné ceně.

 
 
reklama