K pronájmu, Kanceláře, Praha 4, Jana Růžičky

 
 
 
Lokalita:
Praha 4, Jana Růžičky
 
 
Cena:
52 560 Kč / za nemovitost
 
+ služby 11 909 Kč + energie 7 879 Kč + kauce 128 938 Kč
 
uvedená cena je: bez DPH Nabídněte prodejci Vaši cenu 
 
 

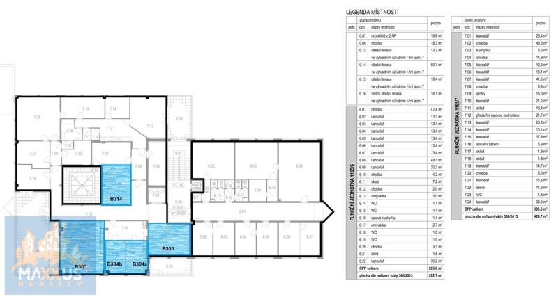
Neplatíte provizi RK! Nabízíme k pronájmu 5 kanceláří o celkové ploše 114,6 m2, situované ve 3. nadzemním podlaží komerční budovy na Praze 4 - Kunratice. 4 samostatné, vedle sebe umístěné kanceláře o ploše 41,6 m2, 13,1 m2, 12,3 m2 a 26,4 m2 + kancelář (zasedací místnost) naproti. Celá budova je elektronicky zabezpečena a napojena na pult centrální ochrany. Vnitřní prostory budovy prošly kompletní rekonstrukcí a jednotlivé kanceláře lze navíc upravit podle požadavků nájemce. Lze sdíleně využívat sociální zařízení a kuchyňku. V ceně nájmu je zahrnuto i parkování přímo u budovy. Třípodlažní budova s kancelářskými i obchodními jednotkami se nachází v ulici Jana Růžičky, pouhé 2 minuty autobusem od stanice metra linky C Chodov. Přímo u budovy se nachází zastávka MHD U Kunratického lesa. Výborná dostupnost dálnice D1. Volné od 1. 1. 2026. Nájemné: 52 560 Kč/měsíc. Služby: 11 909 Kč/měsíc. Energie: 7 879 Kč/měsíc. Uvedené ceny jsou bez DPH. Kauce: 128 938 Kč.

 
zobrazit více
 
 
 


Doplňující informace:

ID inzerátu ESO: 4371547
Inzerát vydán: 25.11.2025
ID zakázky v RK: 7980
Budova je z: Cihla
Stav: Po rekonstrukci
Umístění: Po rekonstrukci
Užitná plocha: 114 m2
Podlahová plocha: 115 m2
Zastavěná plocha: 114 m2
 
 

 
 
 

Bleskový dotaz makléři

K pronájmu, Kanceláře, Praha 4, Jana Růžičky

Text dotazu *
Váš telefon *
Váš e-mail
Zobrazit kontaktní informace
Odeslat
 
 
 
 

Ve schránce je 0 inzerátů.

zobrazit celou schránku
 
 

Nalezli jsme dalších 11 nemovitostí v podobné ceně.

 
 
reklama