K pronájmu, Kanceláře, Praha 3, Kubelíkova

 
 
 
exkluzivně
 
Lokalita:
Praha 3, Kubelíkova
 
 
Cena:
13 500 Kč / za nemovitost
 
+ zálohy ve výši 5.000 Kč na služby a elektřinu
 
Nabídněte prodejci Vaši cenu 
 
 

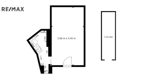
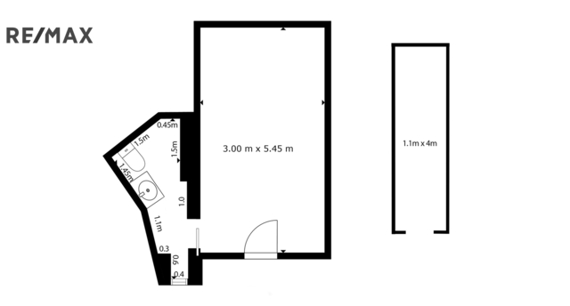
Dovoluji si Vám nabídnout k pronájmu nebytový prostor po rekonstrukci o celkové výměře 17,6 m², který se nachází v suterénu činžovního domu ve vyhledávané lokalitě na adrese Kubelíkova 1224/42, Praha 3 – Žižkov. Prostor je situován ve vnitrobloku objektu, což zajišťuje klidný provoz a dostatek soukromí. Dominantou interiéru je působivý cihlový klenbový strop, velkoformátová dlažba a moderní minimalistické pojetí, které vytváří reprezentativní prostředí vhodné pro kancelář, ateliér, pracovní studio nebo tiché studentské bydlení. Dispozici tvoří hlavní místnost a vlastní sociální zázemí se sprchovým koutem a toaletou. K dispozici je také menší koutek vhodný pro přípravu jednoduchého občerstvení. Vytápění je zajištěno elektrickým podlahovým topením. Součástí nájmu je sklep o velikosti 4,4 m², umístěný v blízkosti jednotky. Ve sklepě je přívod vody, odpad pro připojení pračky, elektrická zásuvka a osvětlení. Nájemce může dále využívat venkovní posezení ve vnitrobloku, odkud je částečný výhled na Žižkovskou televizní věž. Nájemné: 14.500 Kč/měsíc Zálohy na služby a elektřinu: 5.000 Kč/měsíc Internet: není součástí nájmu Dostupnost: ihned k nastěhování Pro bližší informace či sjednání prohlídky mne neváhejte kontaktovat.

 
zobrazit více
 
 
 


Doplňující informace:

ID inzerátu ESO: 4369319
Inzerát vydán: 12.11.2025
Inzerát aktualizován: 03.12.2025
ID zakázky v RK: 427153
Budova je z: Cihla
Stav: Dobrý
Umístění: Dobrý
Užitná plocha: 17 m2
Energetická náročnost budovy:
G - Mimořádně nehospodárná
 
 

 

Bleskový dotaz makléři

K pronájmu, Kanceláře, Praha 3, Kubelíkova

Text dotazu *
Váš telefon *
Váš e-mail
Zobrazit kontaktní informace
Odeslat
 
 
 
 

Ve schránce je 0 inzerátů.

zobrazit celou schránku
 
 

Nalezli jsme dalších 5 nemovitostí v podobné ceně.

 
 
reklama