K pronájmu, Kanceláře, Varnsdorf, 5. května

 
 
 
Lokalita:
Varnsdorf, 5. května
 
 
Cena:
6 000 Kč / za nemovitost
 
 
Nabídněte prodejci Vaši cenu 
 
 

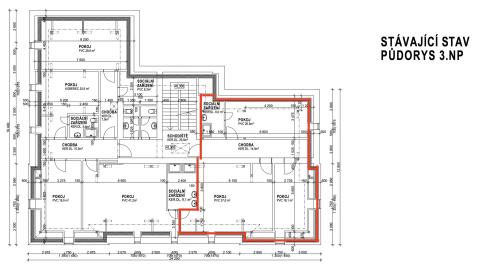
Nabízíme k pronájmu výjimečné komerční prostory s jedinečnou historií. Objekt, který v minulosti sloužil jako celnice a hraniční přechod, byl postupně upraven a dnes poskytuje funkční zázemí s širokými možnostmi využití. Prostory o celkové výměře 94,2 m² se skládají ze tří samostatných, neprůchozích místností, chodby a sociálního zázemí (WC a sprchový kout). Díky dispozičnímu řešení jsou ideální zejména jako kanceláře, administrativní zázemí, ateliér, skladové prostory, provozovna služeb či jiné komerční využití dle potřeb nájemce. Kuchyňský kout zde aktuálně není vybudován, nicméně úpravy prostoru jsou možné po dohodě s majitelem, což umožňuje přizpůsobení interiéru konkrétnímu účelu podnikání. Nájemné: 6.000 Kč / měsíc Zálohy na služby včetně elektřiny: 4.000 Kč / měsíc Rezervační záloha: 7.000 Kč (po podpisu nájemní smlouvy účtována jako provize RK) Vratná kauce: 15.000 Kč K dispozici: ihned V případě zájmu o více informací nebo domluvení prohlídky nás neváhejte kontaktovat.

 
zobrazit více
 
 
 


Doplňující informace:

ID inzerátu ESO: 4378791
Inzerát vydán: 09.01.2026
Inzerát aktualizován: 28.04.2026
Budova je z: Cihla
Stav: Dobrý
Umístění: Dobrý
Užitná plocha: 94 m2
Energetická náročnost budovy:
G - Mimořádně nehospodárná
 
 

 

Bleskový dotaz makléři

K pronájmu, Kanceláře, Varnsdorf, 5. května

Text dotazu *
Váš telefon *
Váš e-mail
Zobrazit kontaktní informace
Odeslat
 
 
 
 

Ve schránce je 0 inzerátů.

zobrazit celou schránku
 
 

Nalezli jsme dalších 4 nemovitostí v podobné ceně.

 
 
reklama