K pronájmu, Kanceláře, Zlín, třída Tomáše Bati

 
 
 
Lokalita:
Zlín, třída Tomáše Bati
 
 
Cena:
29 900 Kč / za nemovitost
 
+ zálohy na energie a služby 2.800,- Kč + DPH/měs. NEPLATÍTE PROVIZI RK!
 
uvedená cena je: bez DPH Nabídněte prodejci Vaši cenu 
 
 

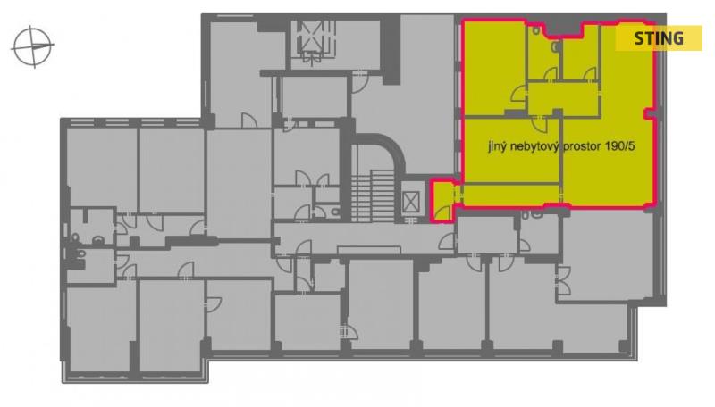
Hledáte reprezentativní prostory pro své podnikání v srdci Zlína s možností soukromého zázemí? Máme pro vás exkluzivní nabídku! K pronájmu nabízíme atraktivní prostory o celkové užitné ploše 108 m2, umístěné ve 3. nadzemním podlaží budovy s výtahem. Součástí jsou 3 samostatné místnosti, z toho jedna s velkým kuchyňským koutem, koupelna se sprchovým koutem a toaletou, technická místnost, ideální kombinace pro kancelářské, poradenské či kreativní využití s případným zázemím pro bydlení. Prostory budou k dispozici po rekonstrukci od 1.2.2026 - bude zde nová koupelna, kuchyňská linka vč. vestavných spotřebičů - viz vizualizace kuchyně ve fotogalerii. Rekonstrukci lze přizpůsobit požadavkům budoucího nájemce! Lokalita, která pracuje za vás Budova se nachází přímo v centru města, naproti divadlu, na hlavní tepně s vysokou frekvencí chodců i automobilové dopravy – ideální místo pro setkávání s klienty. Jedná se o jednu z nejvýznamnějších funkcionalistických staveb nebaťovské architektury, jejímž autorem je ak. arch. Miroslav Lorenc, projektant budov pro Tomáše Baťu. Stav budovy a služby - reprezentativní nemovitost ve velmi dobrém stavu - pravidelně udržovaná a rekonstruovaná - veškerý provoz zajišťuje správce budovy - možnost vyhrazeného parkovacího místa přímo u domu za cenu 2.480,- Kč + DPH Informace k nabízeným prostorům - 2 místnosti jsou klimatizovány - prostory (jsou vedeny jako samostatná nebytová jednotka) mají vlastní hlavní elektroměr - jsou osazeny podružnými měřidly s dálkovým odečtem vodoměru i tepelných indikátorů - teplo je řízeno termostaty v jednotlivých místnostech - radiátory jsou osazeny elektronickými hlavicemi s účelem optimalizace nákladů na vytápění (mobilní aplikace pro automatické či ruční nastaveni teploty) Finanční podmínky nájemné: 29.900 Kč + 21 % DPH/měsíc zálohy na služby: 2.800 Kč + DPH (teplo, vodné, stočné, spol. elektřina aj.) elektřina: vlastní spotřeba – samostatné měření kauce: 1× měsíční nájem provize: Neplatíte provizi RK Prostory jsou vhodné pro plátce DPH. Tato nabídka kombinuje prestižní adresu, komfort a flexibilitu – ideální pro vaše podnikání. Pro více informací nebo sjednání prohlídky kontaktujte realitní kancelář.

 
zobrazit více
 
 
 


Doplňující informace:

ID inzerátu ESO: 4365848
Inzerát vydán: 22.10.2025
Inzerát aktualizován: 28.11.2025
ID zakázky v RK: 133716
Budova je z: Cihla
Stav: Velmi dobrý
Umístění: Velmi dobrý
Užitná plocha: 108 m2
Energetická náročnost budovy:
E - Nehospodárná
 
 

 

Bleskový dotaz makléři

K pronájmu, Kanceláře, Zlín, třída Tomáše Bati

Text dotazu *
Váš telefon *
Váš e-mail
Zobrazit kontaktní informace
Odeslat
 
 
 
 

Ve schránce je 0 inzerátů.

zobrazit celou schránku
 
 

Nalezli jsme dalších 2 nemovitostí v podobné ceně.

 
 
reklama