K pronájmu, Kanceláře, 44 m2

 
 
 
exkluzivně
 
Lokalita:
 
 
Cena:
13 000 Kč / za nemovitost
 
 
uvedená cena je: bez provize Nabídněte prodejci Vaši cenu 
 
 

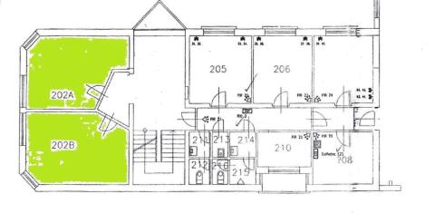
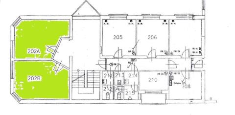
K pronájmu nabízíme dvě kanceláře v moderní administrativní budově na ulici Olomoucká v Brně. Kanceláře se nacházejí v 1. patře, jsou orientovány na jih. Každá kancelář má samostatný vstup, ale jsou i vzájemně propojené uzamykatelnými dveřmi. Celková plocha činí 44 m2 (21,3 m2 a 23,3 m2 ). Měsíční náklady: nájemné 13.000, Kč, paušální platby: odvoz odpadu 600, Kč, údržba komunikace 500, Kč, úklid spol. prostor 400, Kč, ostraha 600, Kč Zúčtovatelné zálohy: elektřina 2 500, Kč, topení plyn 2.500,Kč, voda 1000, Kč Všechny ceny + DPH. Majitel požaduje vratnou kauci ve výši jednoho měsíce včetně všech záloh, tedy: 21.100, Kč + DPH. Lokalita je dobře dostupná autem z D1, z centra města trolejbusem. Parkování před budovou. Více informací u makléře.

 
zobrazit více
 
 
 


Doplňující informace:

ID inzerátu ESO: 4366880
Inzerát vydán: 30.10.2025
Inzerát aktualizován: 27.01.2026
ID zakázky v RK: 7284170
Budova je z: Cihla
Stav: Velmi dobrý
Umístění: Velmi dobrý
Nebytová plocha: 44 m2
Plocha pozemku: 3000 m2
Parkování: Venkovní stání
Užitná plocha: 44 m2
Zastavěná plocha: 87 m2
Energetická náročnost budovy:
G - Mimořádně nehospodárná
 
 

 

Bleskový dotaz makléři

K pronájmu, Kanceláře, 44 m2

Text dotazu *
Váš telefon *
Váš e-mail
Zobrazit kontaktní informace
Odeslat
 
 
 
 

Ve schránce je 0 inzerátů.

zobrazit celou schránku
 
 

Nalezli jsme dalších 478 nemovitostí v podobné ceně.

 
 
reklama