K pronájmu, Obchody, Frýdek-Místek, Nádražní

 
 
 
Lokalita:
Frýdek-Místek, Nádražní
 
 
Cena:
20 680 Kč / za nemovitost
 
+ provize RK ve výši 1 x nájem + DPH
 
Nabídněte prodejci Vaši cenu 
 
 

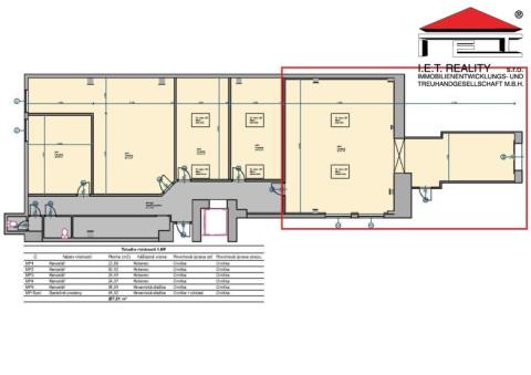
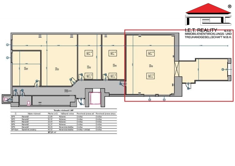
Nabízíme k pronájmu obchodní prostor s 91 m² , které se nachází v přízemí , na ul. Nádražní. Obchodní prostor o velikosti 91 m² má vlastní velký bezbariérový vchod přímo z ulice a také vchod ze společné chodby budovy. Cena nájmu je 2​0​ ​6​8​0​ ​K​č​/​m​ě​s​í​c​ ​(​2​2​7​ ​K​č​/​m​²​)​ a cena služeb je 8 180 Kč + DPH. Tyto prostory je možné rozšířit o navazující kancelář o velikosti 25 m². Cena nájmu je 5 483​ ​K​č​/​m​ě​s​í​c​ ​(​2​219​ ​K​č​/​m​²​)​ a cena služeb je 2 169 Kč + DPH. Nebytové prostory využívají společnou vybavenou kuchyňku a WC v budově. Parkování pro nájemníky je zajištěno na vlastním parkovišti se závorou, přímo za domem. Místnosti jsou napojeny na zabezpečovací systém napojený na SK Policie. Možnost pronájmu světelné reklamy přímo u vchodu na budově. V těsně blízkosti je dostatek parkovacích míst pro klienty. Doporučujeme osobní prohlídku.

 
zobrazit více
 
 
 


Doplňující informace:

ID inzerátu ESO: 4339730
Inzerát vydán: 13.06.2025
Inzerát aktualizován: 10.11.2025
Budova je z: Smíšená
Stav: Velmi dobrý
Umístění: Velmi dobrý
Užitná plocha: 116 m2
Energetická náročnost budovy:
G - Mimořádně nehospodárná
 
 

 

Bleskový dotaz makléři

K pronájmu, Obchody, Frýdek-Místek, Nádražní

Text dotazu *
Váš telefon *
Váš e-mail
Zobrazit kontaktní informace
Odeslat
 
 
 
 

Ve schránce je 0 inzerátů.

zobrazit celou schránku
 
 

Nalezli jsme dalších 13 nemovitostí v podobné ceně.

 
 
reklama