K pronájmu, Obchody, Olomouc, Řepčínská

 
 
 
Lokalita:
Olomouc, Řepčínská
 
 
Cena:
70 000 Kč / za nemovitost
 
bez DPH, + provize RK, cena k jednání
 
uvedená cena je: bez provize, k jednání, bez DPH Nabídněte prodejci Vaši cenu 
 
 

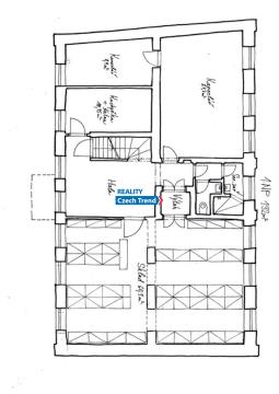
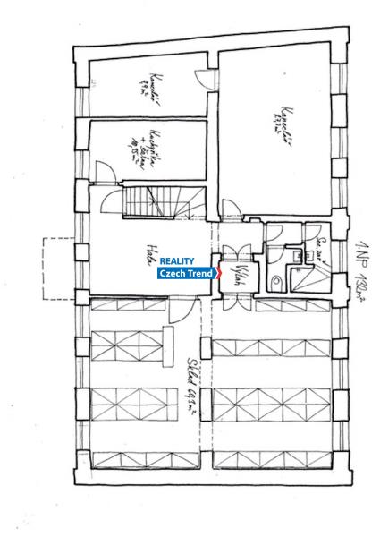
Nabídka pronájmu lukrativního komerčního objektu o užitné ploše 350 m2. Jedná se o třípatrovou budovu blízko centra Olomouce v části Řepčín. Budova se nachází u frekventované komunikace a je dobře přístupná na dálnici směr Mohelnice-Brno - Ostrava. V budově je i výtah. Prostory jsou vhodné pro různé obchodní aktivity, jako například kancelář či showroom, sídlo firmy, prodejní, kancelářské, lékařské ordinace, advokátní služby, kuchyňské studio, atd. Prodejní prostory disponují velkými prosklenými plochami, což zajišťuje dostatek přirozeného světla a vytváří moderní prostředí pro vaše podnikání. K dispozici je také dostatek parkovacích míst pro vaše zákazníky a zaměstnance. Zažijte novou úroveň obchodních prostorů v Olomouci a dejte svému podnikání dostatek prostoru pro růst a rozvoj. V přízemí jsou prodejní prostory, malá kancelář, sklad a garáž. V 1. patře jsou 1. větší a jedna menší kancelář, sklad, kuchyňka a soc. zařízení . Ve 3. patře se nachází skladovací prostor a strojovna výtahu. Budova je vytápěna třemi druhy topení - plyn, elektřina, klimatizace a je napojena na kanalizaci a vodovod + vlastní studna. Prostor lze po dohodě pronajmout i po částech. Prostor je možno pronajmout i po částech. Cena nájemného + DPH se bude odvíjet od velikosti prostoru, který si pronajmete + energie, kauce jeden měsíční nájem, + provize RK jeden měsíční nájem + DPH. V případě zájmu o další informace či prohlídku volejte makléře. Po dohodě možnost pozdějšího odkupu nemovitosti.

 
zobrazit více
 
 
 


Doplňující informace:

ID inzerátu ESO: 4333919
Inzerát vydán: 20.05.2025
Inzerát aktualizován: 25.03.2026
Budova je z: Cihla
Stav: Dobrý
Umístění: Dobrý
Užitná plocha: 480 m2
Energetická náročnost budovy:
G - Mimořádně nehospodárná
 
 

 

Bleskový dotaz makléři

K pronájmu, Obchody, Olomouc, Řepčínská

Text dotazu *
Váš telefon *
Váš e-mail
Zobrazit kontaktní informace
Odeslat
 
 
 
 

Ve schránce je 0 inzerátů.

zobrazit celou schránku
 
 

Nalezli jsme dalších 1 nemovitostí v podobné ceně.

 
 
reklama