K pronájmu, Obchody, Přeštice, Masarykovo nám.

 
 
 
exkluzivně
nový
 
Lokalita:
Přeštice, Masarykovo nám.
 
 
Cena:
Info o ceně u RK
 
cena k jednání, více informací v RK
 
Nabídněte prodejci Vaši cenu 
 
 

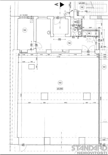
V zastoupení majitele nabízíme k dlouhodobému pronájmu světlý a funkčně řešený nebytový prostor o výměře 179 m² v přízemí bytového domu přímo na náměstí v Přešticích (okres Plzeň-jih). Prostor je napojen na veškeré IS: voda, plyn, elektřina, kanalizace. Dispozice • Centrální místnost 139 m² s přímým vstupem z náměstí; téměř čtvercový půdorys cca 11,15 × 12,46 m • Zázemí 41 m²: chodba, sklad, toalety, kuchyňka, kancelář Vybavení a standard Vybavení a standard • Velké prosklené výlohy se žaluziemi, vstup přes nízký schod (cca 15 cm) • Podlahy: dlažba; okna plastová s vnitřními žaluziemi • Topení: plynový kotel se samostatným měřením (ohřev vody) • Voda a elektřina – samostatné odečty • Možnost předání zařízené nebo po dohodě vyklizené • Budova je zateplena • Aktuálně řešíme PENB budovy, proto se zobrazuje třída G Využití • Aktuálně zkolaudováno jako prodejna • Vhodné i pro služby (kanceláře, ordinace, kosmetika, kadeřnictví, pedikúra, masáže apod.); v takovém případě nutná rekolaudace a případné úpravy interiéru Provozní náklady (aktuálně) • Zálohy na vytápění (plyn): 2 100 Kč/měs. vč. DPH • Elektřina: do 2 500 Kč/měs. vč. DPH • Voda: dle skutečné spotřeby (samostatný odečet) Finanční podmínky • Nájemné: informace v RK (DPH dle statutu nájemce – plátce/neplátce) • Vratná kauce: 1 měsíční nájem (DPH dle statutu nájemce) • Provize RK: 1 měsíční nájem Zásobování a parkování • Zásobování: možnost vjezdu do oploceného dvora z hlavní příjezdové komunikace • Parkování: centrální parkoviště na náměstí Lokalita • Centrum Přeštic, veškerá občanská vybavenost v bezprostřední blízkosti • Výborná dostupnost do Plzně a Klatov (cca 20 km) • Nový obchvat Horní Lukavice – dojezd do Plzně cca 10 minut autem • Výborné spojení vlakem i autobusem Dostupnost • K předání po dohodě s majiteli Pro více informací a termín prohlídky kontaktujte makléře.

 
zobrazit více
 
 
 


Doplňující informace:

ID inzerátu ESO: 4382408
Inzerát vydán: 02.02.2026
ID zakázky v RK: 0183
Budova je z: Cihla
Stav: Velmi dobrý
Umístění: Velmi dobrý
Užitná plocha: 179 m2
 
 

 
 
 

Bleskový dotaz makléři

K pronájmu, Obchody, Přeštice, Masarykovo nám.

Text dotazu *
Váš telefon *
Váš e-mail
Zobrazit kontaktní informace
Odeslat
 
 
 
 

Ve schránce je 0 inzerátů.

zobrazit celou schránku
 
 

Nalezli jsme dalších 1 nemovitostí v podobné ceně.

 
 
reklama