K pronájmu, Obchody, Praha 3, Chrudimská

 
 
 
Lokalita:
Praha 3, Chrudimská
 
 
Cena:
Info o ceně u RK
 
+ záloha na služby a energie 145 Kč /m2 + 2x kauce
 
uvedená cena je: bez DPH Nabídněte prodejci Vaši cenu 
 
 

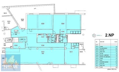
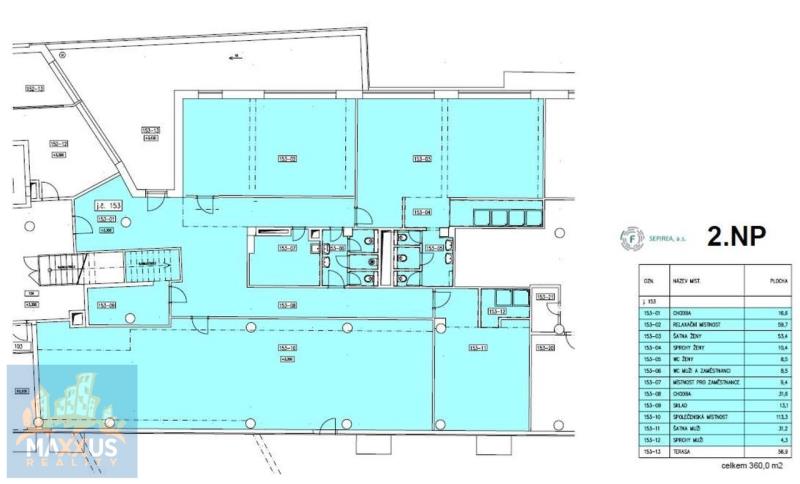
Neplatíte provizi RK! Nabízíme k dlouhodobému pronájmu nebytové prostory o ploše 360 m2 ve 2. nadzemním podlaží objektu AGORA FLORA se vstupem z pasáže, která spojuje ulici Hradeckou a Chrudimskou. Aktuálně jsou prostory provozovány jako studio HOT YOGA. Prostory jsou zkolaudovány jako „centrum volného času“, takže jsou vhodné pro aktivity podobného zaměření (yoga, pilates, pohybové aktivity, taneční studio, masáže apod.). Případně lze prostory po úpravě a změně užívání využít i jako kanceláře či zdravotnické zařízení. Termín počátku nájemního vztahu dle dohody. Po dohodě se stávajícím nájemcem lze za odstupné převzít zařízení a vybavení studia. Nájemné bude každoročně indexováno dle aktuálních údajů ČSÚ o průměrném růstu indexu spotřebitelských cen za předchozí kalendářní rok. Pronajímatel preferuje nájemní smlouvu na dobu určitou, min. 3 roky. Jistota ve výši 2 měsíčních nájmů včetně DPH a 2 záloh na služby. Technická specifikace nebytového prostoru: o elektrická energie, přívod teplé a studené vody, centrální vytápění o vlastní sociální zázemí o klimatizační systém – topení a chlazení o vstup do společných prostor na čipy o světlá výška 2,9 m Vybavení budovy: o ostraha 24/7 o EPS, CCTV o vstup na čipy o podzemní garáže Pronajímatel je připraven: o konzultovat technické požadavky nájemce na úpravu prostor o realizovat stavební úpravy prostor o zajistit projednávání požadovaných změn s dotčenými orgány

 
zobrazit více
 
 
 


Doplňující informace:

ID inzerátu ESO: 4387363
Inzerát vydán: 26.02.2026
Inzerát aktualizován: 23.03.2026
ID zakázky v RK: 8084
Budova je z: Cihla
Stav: Velmi dobrý
Umístění: Velmi dobrý
Užitná plocha: 360 m2
Podlahová plocha: 360 m2
Zastavěná plocha: 360 m2
 
 

 

Bleskový dotaz makléři

K pronájmu, Obchody, Praha 3, Chrudimská

Text dotazu *
Váš telefon *
Váš e-mail
Zobrazit kontaktní informace
Odeslat
 
 
 
 

Ve schránce je 0 inzerátů.

zobrazit celou schránku
 
 

Nalezli jsme dalších 3 nemovitostí v podobné ceně.

 
 
reklama