K pronájmu, Obchody, Praha 5, Strakonická

 
 
 
Lokalita:
Praha 5, Strakonická
 
 
Cena:
15 Kč / za nemovitost
 
bez DPH, bez poplatků
 
uvedená cena je: bez poplatků, bez DPH Nabídněte prodejci Vaši cenu 
 
 

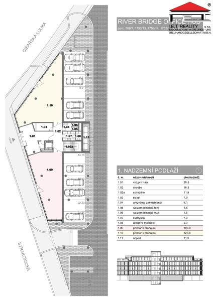
Dovolujeme si Vám nabídnout nové moderní obchodní prostory v přízemí na Praze 5 – Hlubočepy, v blízkosti Dvoreckého mostu, který v dohledné době propojí oba břehy řeky Vltavy. Prostory č. 1.10 o celkové výměře 123,8 m2 se nachází v přízemí administrativní budovy na břehu řeky Vltavy, která se stane součástí areálu River Business Centre. Je možné k nim využívat sociální zázemí o velikosti 66 m2, které se nachází na patře. Služby spojené s užíváním prostorů jsou stanovené na cenu 140 Kč za m2 plochy pronájmu. Areál disponuje recepcí, včetně obsluhy, ostrahou objektu 24/7, výtahem a skvělou dopravní dostupností – navazuje na Strakonickou a pouze pár metrů od kanceláří se nachází zastávka MHD Lihovar. Areál nabízí také parkovací místa – jedná se o krytá i venkovní parkovací stání v areálu a okolí. První měsíce jsou za zvýhodněné nájemné, tedy pouze za 7,99 EUR/m2/měsíc. Volné od 1.3.2026 k nastěhování. Je možné také pronajmout celé patro. Provizi RK neplatíte.

 
zobrazit více
 
 
 


Doplňující informace:

ID inzerátu ESO: 4368729
Inzerát vydán: 07.11.2025
Inzerát aktualizován: 04.12.2025
Budova je z: Smíšená
Stav: Ve výstavbě (nezkolaudováno)
Umístění: Ve výstavbě (nezkolaudováno)
Užitná plocha: 124 m2
Energetická náročnost budovy:
G - Mimořádně nehospodárná
 
 

 
 
 

Bleskový dotaz makléři

K pronájmu, Obchody, Praha 5, Strakonická

Text dotazu *
Váš telefon *
Váš e-mail
Zobrazit kontaktní informace
Odeslat
 
 
 
 

Ve schránce je 0 inzerátů.

zobrazit celou schránku
 
 

Nalezli jsme dalších 14 nemovitostí v podobné ceně.

 
 
reklama