K pronájmu, Obchody, 357 m2, Praha 3, Cimburkova

 
 
 
exkluzivně
 
Lokalita:
Praha 3, Cimburkova
 
 
Cena:
74 000 Kč / za nemovitost
 
K ceně nájmu je třeba připočíst náklady na služby a energie (elektřinu a plyn, které si nájemce převádí na sebe)
 
uvedená cena je: bez provize Nabídněte prodejci Vaši cenu 
 
 

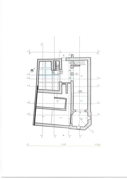
Nově opravený dvoupodlažní prostor k podnikání v přízemí a suterénu rohového činžovního domu. Obě patra jsou propojena dvěma vnitřními schodišti. Dům je na rohu dvou frekventovaných ulic Prahy 3 Žižkov, ul. Prokopova a ul. Cimburkova. Prostor právě prošel celkovou rekonstrukcí: nové výlohy, elektřina, svítidla, plynový kotel, radiátory, zázemí a vzduchotechnika. V přízemí, které je do L o celkové výměře 151 m2, je jedna velká (obchodní) místnost, za níž je 2x WC a kuchyňka s linkou a dřezem. Přízemí má dvě výlohy do ulice Prokopova a samostatný vstup z této ulice. V suterénu je rovněž jedna velká místnost do L o výměře 206 m2. Dispozice je patrná z přiložených půdorysů Ústřední topení je rozvedeno do obou pater, vzduchotechnika je samostatná pro každé podlaží. Dům je zvenčí zabezpečen kamerami. Prostory byly původně využívány jako prodejna a naposledy řadu let jako klub a casino. Možnost rekolaudace. Ideální pro využití jako obchod či vzorkovna, popř. pro spojení obchodu v přízemí s opravnou nebo velkým skladem či nerušící výrobou v suterénu. Pro využití např. jako kavárna by bylo nutno zvýšit počet WC, což by vzhledem k technickým důvodům šlo pouze pomocí přečerpávání, které umožňuje zřídit další toalety prakticky kdekoli a odpadní vody z nich přečerpají až do výšky několika metrů nebo na značnou vzdálenost. V prostorách není kuchyně a nelze ji z technických důvodů zřídit. Na fotkách je skutečný stav prostor. Přímo v domě jsou v přízemí menší restaurace a kosmetika. V ulici Cimburkova je několik hotelů a škola. Na blízkém Prokopově náměstí je další hotel a různé obchody, takže je zde i určitá frekvence osob. Volné ihned. Bez odstupného. Kauce jeden nájem. Provize RK je 1/2 nájmu.

 
zobrazit více
 
 
 


Doplňující informace:

ID inzerátu ESO: 4377594
Inzerát vydán: 30.12.2025
Inzerát aktualizován: 22.05.2026
ID zakázky v RK: 7321050
Budova je z: Cihla
Stav: Po rekonstrukci
Vlastnictví: Osobní
Umístění: Po rekonstrukci
Nebytová plocha: 357 m2
Plyn: Zaveden
Voda: Vodovod
Parkování: U domu (veřejné)
Užitná plocha: 357 m2
Zastavěná plocha: 392 m2
Energetická náročnost budovy:
F - Velmi Nehospodárná
 
 

 

Bleskový dotaz makléři

K pronájmu, Obchody, 357 m2, Praha 3, Cimburkova

Text dotazu *
Váš telefon *
Váš e-mail
Zobrazit kontaktní informace
Odeslat
 
 
 
 

Ve schránce je 0 inzerátů.

zobrazit celou schránku
 
 

Nalezli jsme dalších 1 nemovitostí v podobné ceně.

 
 
reklama