K pronájmu, Sklady, Luby

 
 
 
exkluzivně
 
Lokalita:
Luby
 
 
Cena:
59 000 Kč / za nemovitost
 
cena včetně provize a právních služeb
 
Nabídněte prodejci Vaši cenu 
 
 

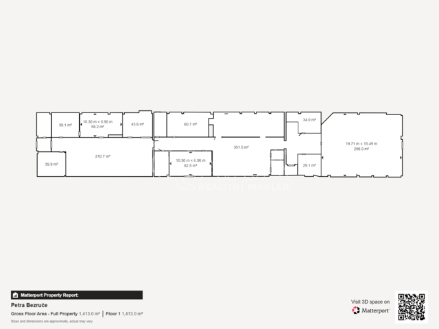
Hledáte velký prostor pro své podnikání v lokalitě s výbornou dopravní dostupností a bez potřeby dalších investic? V areálu v Lubech u Chebu nabízíme k pronájmu prostornou halu o ploše 1 700 m², která je připravena k okamžitému provozu (z toho 1.NP s plochou cca 1400 m² a suterén cca 300 m²). Budova prošla rozsáhlými technickými úpravami a je ideálním řešením pro lehkou výrobu, sklad, logistiku nebo jako základna pro další podnikatelské aktivity. Co objekt nabízí: - Kompletně modernizovaná elektroinstalace a rozvody - Zrekonstruované vytápění (nový kotel na tuhá paliva, připraveno i na tepelné čerpadlo) - Nová plastová okna s izolačními skly - Zateplené stropy - Opravené zázemí pro zaměstnance – šatny, toalety Připojení a energie: - Elektřina: nový přívod, rozvodna s příkonem 3×160 A (sazba C02D) - Voda a kanalizace: nové přípojky, napojení na areálovou čističku - Plyn: možnost opětovného připojení Přístup a doprava: - Přímý vjezd z obecní komunikace - Elektrická vrata (2,94 × 3,3 m) + dvě další vrata na opačných stranách haly - Možnost využití nákladové rampy - Parkovací plocha u objektu (další rozšíření možné) Lokalita s výhodami: - Luby u Chebu – strategická poloha blízko hranic s Německem. Výborná dostupnost: - 25 km do Chebu (napojení na D6 směr Praha) - 18 km k silnici E49 (Magdeburg – Vídeň) Nájemní podmínky: - Měsíční nájemné: 59 000 Kč - Vratná kauce: 118 000 Kč - Zálohy na energie a služby (elektřina, voda): dle spotřeby – bude upřesněno (převod smlouvy na nájemce) Prostor je k dispozici ihned. V případě zájmu o více informací nebo osobní prohlídku nás neváhejte kontaktovat.

 
zobrazit více
 
 
 


Doplňující informace:

ID inzerátu ESO: 4374360
Inzerát vydán: 09.12.2025
Inzerát aktualizován: 13.01.2026
ID zakázky v RK: 18199
Budova je z: Cihla
Stav: Po rekonstrukci
Umístění: Po rekonstrukci
Užitná plocha: 1700 m2
Zastavěná plocha: 1467 m2
Energetická náročnost budovy:
G - Mimořádně nehospodárná
 
 

 

Bleskový dotaz makléři

K pronájmu, Sklady, Luby

Text dotazu *
Váš telefon *
Váš e-mail
Zobrazit kontaktní informace
Odeslat
 
 
 
 

Ve schránce je 0 inzerátů.

zobrazit celou schránku
 
 
reklama