K pronájmu, Sklady, Týn nad Vltavou

 
 
 
exkluzivně
 
Lokalita:
Týn nad Vltavou
 
 
Cena:
100 Kč / za nemovitost
 
 
Nabídněte prodejci Vaši cenu 
 
 

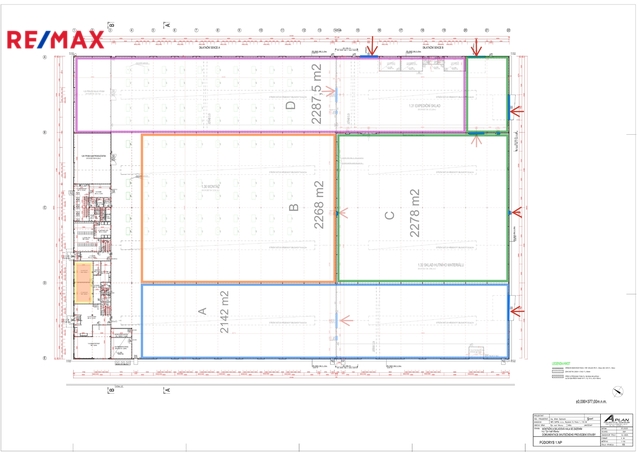
Exkluzivně nabízíme k pronájmu nové, moderní skladovací a výrobní prostory ve vyhrazené části průmyslové výrobní haly v Týně nad Vltavou. Součástí pronájmu je až 5 kanceláří (každá o velikosti 30m2), společná kuchyňka a zasedací místnost (o velikosti 90m2). K dispozici je až 40 parkovacích míst. Plocha prostor k pronájmu činí 2.142m2. Sektor A (viz přiložený plánek). Je rovněž možné pronajmout části B+C (o velikosti 4.546m2) dle přiloženého plánku, nebo celý prostor o velikosti 6.688 m2. Prostory jsou protipožární stěnou rozdělené na 2 části. Prostory mají samostatný vjezd pro nákladní a kamionovou dopravu a samostatný vchod pro personál. K dispozici je také společné sociální zařízení pro celou budovu. Budova je vytápěna a klimatizována, je vhodná pro výrobní či skladové účely, pro uskladnění materiálu, strojů. Důkladná izolace a stavební materiály udržují konstantní teplotu a vlhkost, objekt splňuje požární normy. Budova je uzamykatelná a přístup ke vjezdovým vratům oplocený pro zvýšenou ochranu. Budova se nachází v průmyslové zóně na okraji obce Týn nad Vltavou - Malá Strana, s dobrou dostupností do centra Týna nad Vltavou i do okolních měst jakou jsou Bechyně, Soběslav, Vodňany, Písek, České Budějovice a Veselí nad Lužnicí, kde se nachází i nájezd na dálnici D3. Měsíční nájemné činí 100 Kč/m2/měsíc. K uvedenému nájemnému je nutno připočítat DPH v zákonné výši. Měsíční zálohy na služby činí 11 Kč/m2/měsíc. Pronajímatel požaduje vratnou kauci ve výši 1 měsíčního nájmu. Prostory o velikosti 2.142m2 jsou k dispozici ihned, ostatní od 01.06.2026. Informace a možnosti prohlídek žádejte u makléře zakázky. Pronajímající si vyhrazuje právo vybrat nájemce na základě jím zvolených kritérií.

 
zobrazit více
 
 
 


Doplňující informace:

ID inzerátu ESO: 4388471
Inzerát vydán: 05.03.2026
Inzerát aktualizován: 12.03.2026
ID zakázky v RK: 433906
Budova je z: Montovaná
Stav: Velmi dobrý
Umístění: Velmi dobrý
Užitná plocha: 2142 m2
Energetická náročnost budovy:
A - Mimořádně úsporná
 
 

 

Bleskový dotaz makléři

K pronájmu, Sklady, Týn nad Vltavou

Text dotazu *
Váš telefon *
Váš e-mail
Zobrazit kontaktní informace
Odeslat
 
 
 
 

Ve schránce je 0 inzerátů.

zobrazit celou schránku
 
 

Nalezli jsme dalších 5 nemovitostí v podobné ceně.

 
 
reklama