K pronájmu, Výroba, 256 m2, Brno-jih

 
 
 
Lokalita:
Brno-jih
 
 
Cena:
35 000 Kč / za nemovitost
 
Neplatíte provizi. Prostor pronajímáme jako přímý majitel.
 
Nabídněte prodejci Vaši cenu 
 
 

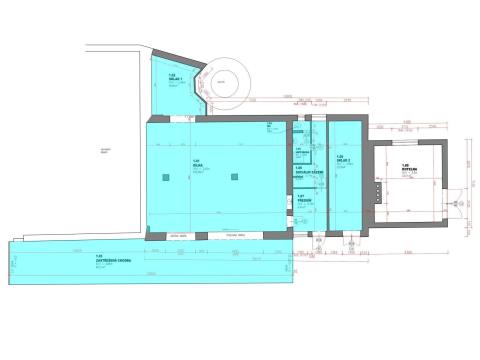
Pronájem vytápěné dílny 256 m² – ideální pro autoservis, výrobu nebo sklad K pronájmu nabízíme vytápěnou dílnu o celkové užitné ploše 256 m², která je vhodná pro provoz autoservisu, lehkou výrobu nebo skladování. Objekt se nachází v uzavřeném a dobře přístupném areálu a disponuje samostatným vstupem a dvěma vjezdy přímo do budovy. Tyto vjezdy umožňují pohodlnou manipulaci s materiálem i technikou. Dispozičně je prostor rozdělen na hlavní dílnu o výměře 100 m², sklad o velikosti 16 m² a chodbu s možností dalšího skladování o rozloze 80 m². Součástí je také vlastní sociální zázemí, zahrnující toaletu a umývárnu. Před objektem se nachází venkovní plocha s možností dodatečného pronájmu parkování pro více vozidel. Areál je oplocený, bezpečný a přístupný i pro nákladní dopravu. Zálohy na energie a služby budou stanoveny individuálně dle konkrétního typu provozu. Neplatíte provizi. Prostor pronajímáme jako přímý majitel.

 
zobrazit více
 
 
 


Doplňující informace:

ID inzerátu ESO: 4348069
Inzerát vydán: 25.07.2025
Inzerát aktualizován: 12.03.2026
ID zakázky v RK: 6489220
Budova je z: Smíšená
Stav: Velmi dobrý
Vlastnictví: Osobní
Umístění: Velmi dobrý
Nebytová plocha: 256 m2
Plocha pozemku: 256 m2
Parkování: Venkovní stání
Užitná plocha: 256 m2
Podlahová plocha: 256 m2
Zastavěná plocha: 256 m2
Energetická náročnost budovy:
G - Mimořádně nehospodárná
 
 

 

Bleskový dotaz makléři

K pronájmu, Výroba, 256 m2, Brno-jih

Text dotazu *
Váš telefon *
Váš e-mail
Zobrazit kontaktní informace
Odeslat
 
 
 
 

Ve schránce je 0 inzerátů.

zobrazit celou schránku
 
 

Nalezli jsme dalších 350 nemovitostí v podobné ceně.

 
 
reklama