K prodeji, Vila, Čista Mala,Chorvatsko

 
 
 
Lokalita:
Čista Mala,Chorvatsko
 
 
Cena:
14 559 974 Kč / za nemovitost
 
 
Nabídněte prodejci Vaši cenu 
 
 

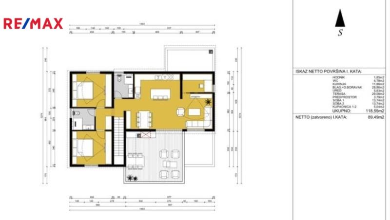
Tento unikátní dům se nachází v obci ČISTA MALA ve vnitrozemí Vodice, asi 15 minut jízdy autem od prvních pláží a měst Vodice a Pirovac a je také jen 1 km od dálnice. Poloha objektu je ideální! Nabízí blízkost ke všemu a na druhou stranu klid, venkovskou idylu a klidnou dovolenou...! Zařízený samostatně stojící dům s velkou zahradou a bazénem, ​​o rozloze 245 m2 a skládá se z přízemí a horního patra. Dům byl kompletně zrekonstruován (jinak byl postaven v roce 1984) a některé z jeho prvků jsou: nová fasáda, střecha, okapy, tesařské práce, moskytiéry, nábytek, klimatizace, kompletní instalace vody a elektřiny. K dispozici je také sklep zakopaný hluboko v zemi, který lze využít jako vinný sklep nebo místo pro sušení a skladování dalmatských specialit. V přízemí se nachází komfortní byt o rozloze 126,30 m2, který se skládá ze vstupní haly a předsíně se skříněmi, 2 ložnic, 2 koupelen, kuchyně s jídelnou a obývacího pokoje s přístupem na východní uzavřenou lodžii (kde se nachází toaleta pro hosty), s výhledem na zelenou zahradu a bazén. V patře - po vystoupení po vnitřním schodišti se nachází další byt o rozloze 118,55 m2, který se skládá z: chodby s toaletou, 2 ložnic s koupelnou, vstupní haly, pracovny, obrovské kuchyně s jídelnou a obývacího pokoje s přístupem na jižní slunnou terasu. Dvůr o rozloze 760 m2 je skutečnou zelenou oázou s bazénem pro relaxaci v naprostém soukromí a 4 parkovacími místy. Vila je ideální pro užívání větší rodinou nebo pro dvě rodiny, protože patra jsou zcela oddělená a mají pouze společný venkovní vchod do domu. Je vhodný i k turistickému pronájmu, protože nabízí klid, požitek a samotu, únik z velkoměst a rychlého života. Vzdálenost od moře a pláže v Pirovaci 16 km (17 min), do Vodice 16 km (15 min), 1 km od dálnice, 17 km od NP Krka, 27 km od Murteru (NP Kornati), 71 km od NP Paklenica, 37 km od přírodního parku Vranjsko jezero, 49 km od letiště v Zadaru a 70 km od letiště ve Splitu. Prodávající si vyhrazuje právo vybrat kupujícího na základě jím zvolených kritérií.

 
zobrazit více
 
 
 


Doplňující informace:

ID inzerátu ESO: 4389273
Inzerát vydán: 10.03.2026
ID zakázky v RK: 434263
Budova je z: Cihla
Stav: Velmi dobrý
Umístění: Velmi dobrý
Plocha pozemku: 760 m2
Užitná plocha: 244 m2
Energetická náročnost budovy:
G - Mimořádně nehospodárná
 
 

 

Bleskový dotaz makléři

K prodeji, Vila, Čista Mala,Chorvatsko

Text dotazu *
Váš telefon *
Váš e-mail
Zobrazit kontaktní informace
Odeslat
 
 
 
 

Ve schránce je 0 inzerátů.

zobrazit celou schránku
 
 

Nalezli jsme dalších 928 nemovitostí v podobné ceně.

 
 
reklama