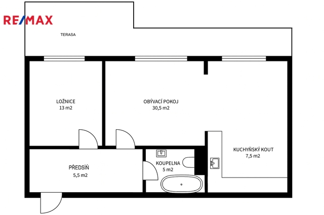
Nabízím pronájem příjemného, reprezentativního bytu v klidné části Prahy 5, odkud je to jen pár minut do centra. Byt o velikosti 61,4 m² s velkorysou terasou nabízí dostatek světla, prostoru a pohodlí. Jedná se o nadstandardní bydlení pro ty, kdo si potrpí na kvalitu, klid a pohodlí. K bytu náleží garážové stání. Byt se pronajímá bez nábytku. Dispozice 2+kk je ideální pro jednotlivce nebo pár, který ocení kvalitu a soukromí: - předsíň s vestavěnými skříněmi, - obývací pokoj s kuchyňským koutem a vstupy na terasu, - ložnice s vestavěnými skříněmi a dalším vstupem na terasu, - koupelna s vanou a WC, - prostorná terasa přístupná ze všech místností. Kuchyňská linka je plně vybavená všemi spotřebiči, podlahy jsou v dřevěném dekoru. Interiér působí svěže a díky kombinaci světlých barev a dřeva vytváří příjemnou atmosféru. Na oknech jsou nainstalované venkovní žaluzie, které v letních měsících vytvoří příjemné zastínění. Byt se nachází ve 4. podlaží moderního domu s výtahem v oblíbené lokalitě Praha 5 – Košíře, která nabízí výbornou dopravní dostupnost i dostatek zeleně a klidu. V okolí najdete obchody, kavárny, park Cibulka i oblíbené sportovní stezky. ✅ dlouhodobý pronájem ✅ určeno pro max. 2 osoby ✅ ihned k nastěhování Měsíční nájemné: 23 000 Kč Jistota/kauce: 46 000 Kč Měsíční poplatky: 4 000 Kč Elektřinu si nájemce převádí na sebe. Nájemce provizi NEPLATÍ! V případě více zájemců, majitel bytu upřednostní nájemce bez domácích mazlíčků. Pokud vás nabídka zaujala a máte vážný zájem o pronájem bytu, prosím, kontaktujte mě co nejdříve.
Tel: 777 250 124 gabriela.malimankova@re-max.cz
Spálená 97/29, 110 00 Praha 1 www.remaxalfa.cz
Ve schránce je 0 inzerátů.
K pronájmu, Byt 1+1, 32 m2 Peroutkova
K pronájmu, Byt 2+kk, 42 m2 Plaská
K pronájmu, Byt 2+kk, 61 m2 Praha 13, Klementova
K pronájmu, Byt >7+1, 13 m2 náměstí Kinských
K pronájmu, Byt 1+kk, 40 m2 Do zahrádek I
K pronájmu, Byt 1+1, 28 m2 Plzeňská
K pronájmu, Byt 2+kk, 42 m2 Grafická
K pronájmu, Byt 1+kk, 30 m2 Sazovická